Menu Home

Бесплатная техническая библиотека для любителей и профессионалов Бесплатная техническая библиотека


Раздел 4. Распределительные устройства и подстанции

Распределительные устройства и подстанции напряжением выше 1 кB. Открытые распределительные устройства

Бесплатная техническая библиотека

Энциклопедия радиоэлектроники и электротехники / Правила устройства электроустановок (ПУЭ)

Комментарии к статье Комментарии к статье

4.2.45. В ОРУ 110 кВ и выше должен быть предусмотрен проезд для передвижных монтажно-ремонтных механизмов и приспособлений, а также передвижных лабораторий.

4.2.46. Соединение гибких проводов в пролетах должно выполняться опрессовкой с помощью соединительных зажимов, а соединения в петлях у опор, присоединение ответвлений в пролете и присоединение к аппаратным зажимам - опрессовкой или сваркой. При этом присоединение ответвлений в пролете выполняется, как правило, без разрезания проводов пролета.

Пайка и скрутка проводов не допускаются.

Болтовые соединения допускаются только на зажимах аппаратов и на ответвлениях к разрядникам, ОПН, конденсаторам связи и трансформаторам напряжения, а также для временных установок, для которых применение неразъемных соединений требует большого объема работ по перемонтажу шин.

Гирлянды изоляторов для подвески шин в ОРУ могут быть одноцепными. Если одноцепная гирлянда не удовлетворяет условиям механических нагрузок, то следует применять двухцепную.

Разделительные (врезные) гирлянды не допускаются, за исключением гирлянд, с помощью которых осуществляется подвеска высокочастотных заградителей.

Закрепление гибких шин и тросов в натяжных и подвесных зажимах в отношении прочности должны соответствовать требованиям, приведенным в 2.5.84.

4.2.47. Соединения жестких шин в пролетах следует выполнять сваркой, а соединение шин соседних пролетов следует выполнять с помощью компенсирующих устройств, присоединяемых к шинам, как правило, сваркой. Допускается присоединение компенсирующих устройств к пролетам с помощью болтовых соединений.

Ответвления от жестких шин могут выполняться как гибкими, так и жесткими, а присоединение их к пролетам следует выполнять, как правило, сваркой. Присоединение с помощью болтовых соединений разрешается только при обосновании.

4.2.48. Ответвления от сборных шин ОРУ, как правило, должны располагаться ниже сборных шин.

Подвеска ошиновки одним пролетом над двумя и более секциями или системами сборных шин не допускается.

4.2.49. Нагрузки на шины и конструкции от ветра и гололеда, а также расчетные температуры воздуха должны определяться в соответствии с требованиями строительных норм и правил. При этом прогиб жестких шин не должен превышать 1/80 длины пролета.

При определении нагрузок на конструкции дополнительно следует учитывать вес человека с инструментами и монтажными приспособлениями при применении:

  • натяжных гирлянд изоляторов - 2,0 кН;
  • поддерживающих гирлянд - 1,5 кН;
  • опорных изоляторов - 1,0 кН.

Тяжение спусков к аппаратам ОРУ не должно вызывать недопустимых механических напряжений и недопустимого сближения проводов при расчетных климатических условиях.

4.2.50. Расчетные механические усилия, передающиеся при КЗ жесткими шинами на опорные изоляторы, следует принимать в соответствии с требованиями гл. 1.4.

4.2.51. Коэффициент запаса механической прочности при нагрузках, соответствующих 4.2.49, следует принимать:

  • для гибких шин - не менее 3 по отношению к их временному сопротивлению разрыва;
  • для подвесных изоляторов - не менее 4 по отношению к гарантированной минимальной разрушающей нагрузке целого изолятора (механической или электромеханической в зависимости от требований стандартов на примененный тип изолятора);
  • для сцепной арматуры гибких шин - не менее 3 по отношению к минимальной разрушающей нагрузке;
  • для опорных изоляторов жесткой ошиновки - не менее 2,5 по отношению к гарантированной минимальной разрушающей нагрузке изолятора.

4.2.52. Опоры для крепления шин ОРУ должны рассчитываться как промежуточные или концевые в соответствии с гл. 2.5.

4.2.53. Компоновки ОРУ 35 кВ и выше рекомендуется выполнять без верхнего яруса шин, проходящего над выключателями.

4.2.54. Наименьшие расстояния в свету между неизолированными токоведущими частями разных фаз, от неизолированных токоведущих частей до земли, заземленных конструкций и ограждений, а также между неизолированными токоведущими частями разных цепей следует принимать по табл. 4.2.5 (рис. 4.2.3 - 4.2.12).

В случае, если в установках, расположенных в высокогорье, расстояния между фазами увеличиваются по сравнению с приведенными в табл. 4.2.5 по результатам проверки на корону, соответственно должны быть увеличены и расстояния до заземленных частей.

Таблица 4.2.5. Наименьшие расстояния в свету от токоведущих частей до различных элементов ОРУ (подстанций) 10-750 кВ, защищенных разрядниками, и ОРУ 220-750 кВ, защищенных ограничителями перенапряжений1), 2), 3), 4), 5), (в знаменателе) (рис. 4.2.3 - 4.2.12)

Номер рисунка Наименование расстояния Обозначение Изоляционное расстояние, мм, для номинального напряжения, кВ
до 10 20 35 110 150 220 330 500 750
4.2.3 4.2.4 4.2.5 От токоведущих частей, элементов оборудования и изоляции, находящихся под напряжением, до протяженных заземленных конструкций и до постоянных внутренних ограждений высотой не менее 2 м, а также до стационарных межячейковых экранов и противопожарных перегородок Аф-з 200 300 400 900 1300 1800 1200 2500 2000 3750 3300 5500 5000
4.2.3 4.2.4 От токоведущих частей, элементов оборудования и изоляции, находящихся под напряжением, до заземленных конструкций: головка аппарата - опора, провод - стойка, траверса, провод - кольцо, стрежень А1ф-з 200 300 400 900 1300 1600 1200 2200 1800 3300 2700 5000 4500
4.2.3 4.2.4 4.2.11 Между токоведущими частями разных фаз Аф-ф 220 330 440 100 1400 2000 1600 1800 2200 4200 3400 8000 6500
4.2.5 4.2.7 От токоведущих частей, элементов оборудования и изоляции, находящихся под напряжением, до постоянных внутренних ограждений высотой до 1,6 м и до транспортируемого оборудования 'Б' 950 1050 1150 1650 2050 2550 2000 3250 3000 4500 4100 6300 5800
4.2.8 Между токоведущими частями разных цепей в разных плоскостях при обслуживаемой нижней цепи и неотключенной верхней 'В' 960 1050 1150 1650 2050 3000 2400 4000 3500 5000 3950 7000 6000
4.2.6 4.2.12 От неогражденных токоведущих частей до земли или до кровли зданий при наибольшем провисании проводов 'Г' 2900 3000 3100 3600 4000 4500 3900 5000 4700 6450 6000 8200 7200
4.2.8 4.2.9 Между токоведущими частями разных цепей в разных плоскостях, а также между токоведущими частями разных цепей по горизонтали при обслуживании одной цепи и неотключенной другой 1' 2200 2300 2400 2900 3300 3600 3200 4200 3800 5200 4700 7000 6500
4.2.10 4.2.12 От токоведущих частей до верхней кромки внешнего забора или до здания и сооружения 'Д' 2200 2300 2400 2900 3300 3800 3200 4500 4000 5750 5300 7500 6500
4.2.11 От контакта и ножа разъединителя в отключенном положении до ошиновки, присоединенной ко второму контакту 'Ж' 240 365 485 1100 1550 2200 1800 3100 2600 4600 3800 7500 6100

1. Для элементов изоляции, находящихся под распределенным потенциалом, изоляционные расстояния следует принимать с учетом фактических значений потенциалов в разных точках поверхности. При отсутствии данных о распределении потенциала следует условно принимать прямолинейный закон падения потенциала вдоль изоляции от полного номинального напряжения (со стороны токоведущих частей) до нуля (со стороны заземленных частей).

2. Расстояние от токоведущих частей или элементов изоляции (со стороны токоведущих частей), находящихся под напряжением, до габаритов трансформаторов, транспортируемых по железнодорожным путям, допускается принять менее размера 'Б', но не менее размера А1ф-з.

3. Расстояния Аф-з, А1ф-з и Аф-ф для ОРУ 220 кВ и выше, расположенных на высоте более 1000 м над уровнем моря, должны быть увеличены в соответствии с требованиями государственных стандартов, а расстояния Аф-ф, 'В' и 'Д1' должны быть проверены по условиям ограничения короны.

4. Для напряжения 750 кВ в таблице даны расстояния Аф-ф между параллельными проводами длиной более 20 м; расстояния Аф-ф, между экранами, скрещивающимися проводами, параллельными проводами длиной до 20 м для ОРУ 750 кВ с разрядниками равны 7000 мм, а для ОРУ 750 кВ с ОПН - 5500 мм.

5. Ограничители перенапряжений имеют защитный уровень ограничения коммутационных перенапряжений фаза - земля 1,8 Uф.


Рис. 4.2.3. Наименьшие расстояния в свету при жестких шинах между токоведущими и заземленными частями (Аф-з,А1ф-з) и между токоведущими частями разных фаз (Аф-ф)


Рис. 4.2.4. Наименьшие расстояния в свету при гибких шинах между токоведущими и заземленными частями и между токоведущими частями разных фаз, расположенными в одной горизонтальной плоскости

4.2.55. Наименьшие расстояния в свету при жестких шинах (см. рис. 4.2.3.) между токоведущими и заземленными частями Аф-з и между токоведущими частями разных фаз Аф-ф следует принимать по табл. 4.2.5, а при гибких (см. рис. 4.2.4) - следует определять следующим образом:

Aф-з.г = Аф-з + α ; A1ф-з = А1ф-з.г + α ; Aф-ф.г = Аф-ф + α ;

где α=f·sin(a); f - стрела провеса проводов при температуре +15 ºС, м; a=arctg(P/Q); Q - расчетная нагрузка от веса провода на 1 м длины провода, даН/м; P - расчетная линейная ветровая нагрузка на провод, даН/м; при этом скорость ветра принимается равной 60% значения, выбранного при расчете строительных конструкций.

4.2.56. Наименьшие допустимые расстояния в свету между находящимися под напряжением соседними фазами в момент их наибольшего сближения под действием токов КЗ должны быть не менее приведенных в табл. 2.5.17, принимаемым по наибольшему рабочем напряжению.

В гибкой ошиновке, выполненной из нескольких проводов в фазе, следует устанавливать внутрифазовые дистанционные распорки.

4.2.57. Наименьшие расстояния от токоведущих частей и изоляторов, находящихся под напряжением, до постоянных внутренних ограждений должны быть (табл. 4.2.5, рис. 4.2.5):

  • по горизонтали - не менее размера 'Б' при высоте ограждения 1,6 м и не менее размера Аф-з при высоте ограждения 2,0 м. Второй вариант рекомендуется для применения в стесненных условиях площадки ПС;
  • по вертикали - не менее размера Аф-з, отмеряемого в плоскости ограждения от точки, расположенной на высоте 2,7 м от земли.


Рис. 4.2.5. Наименьшие расстояния от токоведущих частей и элементов изоляции, находящихся под напряжением, до постоянных внутренних ограждений


Рис. 4.2.6. Наименьшие расстояния от неогражденных токоведущих частей и от нижней кромки фарфора изоляторов до земли

4.2.58. Токоведущие части (выводы, шины, спуски и т.п.) могут не иметь внутренних ограждений, если они расположены над уровнем планировки или наземных коммуникационных сооружений на высоте не менее значений, соответствующих размеру 'Г' по табл. 4.2.5 (рис. 4.2.6.).

Неогражденные токоведущие части, соединяющие конденсатор устройств высокочастотной связи, телемеханики и защиты с фильтром, должны быть расположены на высоте не менее 2,5 м. При этом рекомендуется устанавливать фильтр на высоте, позволяющей производить ремонт (настройку) фильтра без снятия напряжения с оборудования присоединения.

Трансформаторы и аппараты, у которых нижняя кромка фарфора (полимерного материала) изоляторов расположена над уровнем планировки или наземных коммуникационных сооружений на высоте не менее 2,5 м, разрешается не ограждать (см. рис. 4.2.6). При меньшей высоте оборудование должно иметь постоянные ограждения, удовлетворяющие требованиям 4.2.29, располагаемые от трансформаторов и аппаратов на расстояниях не менее приведенных в 4.2.57. Вместо постоянных ограждений допускается устройство козырьков, предотвращающих прикосновение обслуживающего персонала к изоляции и элементам оборудования, находящимся под напряжением.

4.2.59. Расстояния от неогражденных токоведущих частей до габаритов машин, механизмов и транспортируемого оборудования должны быть не менее размера 'Б' по табл. 4.2.5 (рис. 4.2.7.).


Рис. 4.2.7. Наименьшие расстояния от токоведущих частей до транспортируемого оборудования

4.2.60. Расстояния между ближайшими неогражденными токоведущими частями разных цепей должны выбираться из условия безопасного обслуживания одной цепи при неотключенной второй. При расположении неогражденных токоведущих частей разных цепей в разных (параллельных или перпендикулярных) плоскостях расстояния по вертикали должны быть не менее размера 'В', а по горизонтали - размера 'Д1' по табл. 4.2.5 (рис. 4.2.8). При наличии разных напряжений размеры 'В' и 'Д1' принимаются по более высокому напряжению.

Размер 'В' определен из условия обслуживания нижней цепи при неотключенной верхней, а размер 'Д1' - обслуживания одной цепи при неотключенной другой. Если такое обслуживание не предусматривается, расстояние между токоведущими частями разных цепей в разных плоскостях должно приниматься в соответствии с 4.2.53; при этом должна быть учтена возможность сближения проводов в условиях эксплуатации (под влиянием ветра, гололеда, температуры).


Рис. 4.2.8. Наименьшие расстояния между токоведущими частями разных цепей, расположенными в различных плоскостях с обслуживанием нижней цепи при неотключенной верхней


Рис. 4.2.9. Наименьшие расстояния по горизонтали между токоведущими частями разных цепей с обслуживанием одной цепи при неотключенной другой

4.2.61. Расстояния между токоведущими частями и верхней кромкой внешнего забора должны быть не менее размера 'Д' по табл. 4.2.5 (рис. 4.2.10).


Рис. 4.2.10. Наименьшие расстояния от токоведущих частей до верхней кромки внешнего ограждения

4.2.62. Расстояния от подвижных контактов разъединителей в отключенном положении до заземленных частей должны быть не менее размеров Аф-з и А1ф-з; до ошиновки своей фазы, присоединенной ко второму контакту, - не менее размера 'Ж'; до ошиновки других присоединений - не менее размера Аф-ф по табл. 4.2.5 (рис. 4.2.11).


Рис. 4.2.11. Наименьшие расстояния от подвижных контактов разъединителей в отключенном положении до заземленных и токоведущих частей

4.2.63. Расстояния между токоведущими частями ОРУ и зданиями или сооружениями (ЗРУ, помещение щита управления, трансформаторная башня и др.) по горизонтали должны быть не менее размера 'Д', а по вертикали при наибольшем провисании проводов - не менее размера 'Г' по табл. 4.2.5 (рис. 4.2.12).


Рис. 4.2.12. Наименьшие расстояния между токоведущими частями и зданиями и сооружениями

4.2.64. Прокладка воздушных осветительных линий, воздушных линий связи и цепей сигнализации над и под токоведущими частям ОРУ не допускается.

4.2.65. Расстояния от складов водорода до ОРУ, трансформаторов, синхронных компенсаторов должны быть не менее 50 м; до опор ВЛ - не менее 1,5 высоты опоры; до зданий ПС при количестве хранимых на складе баллонов до 500 шт. - не менее 20 м, свыше 500 шт. - не менее 25 м; до внешней ограды ПС - не менее 5,5 м.

4.2.66. Расстояния от открыто установленных электротехнических устройств до водоохладителей ПС должны быть не менее значений, приведенных в табл. 4.2.6.

Для районов с расчетными температурами наружного воздуха ниже минус 36 ºС приведенные в табл. 4.2.6 расстояния должны быть увеличены на 25%, а с температурами выше минус 20 ºС - уменьшены на 25%. Для реконструируемых объектов приведенные в табл. 4.2.6 расстояния допускается уменьшать, но не более чем на 25%.

Таблица 4.2.6. Наименьшее расстояние от открыто установленных электротехнических устройств до водоохладителей ПС

Водоохладитель Расстояние, м
Брызгальные устройства и открытые градирни 80
Башенные и одновентиляторные градирни 30
Секционные вентиляторные градирни 42

4.2.67. Расстояния от оборудования РУ и ПС до зданий ЗРУ и других технологических зданий и сооружений, до КБ, СТК, СК определяются только технологическими требованиями и не должны увеличиваться по пожарным условиям.

4.2.68. Противопожарные расстояния от маслонаполненного оборудования с массой масла в единице оборудования 60 кг и более до производственных зданий с категорией помещения В1-В2, Г и Д, а также до жилых и общественных зданий должны быть не менее:

  • 16 м - при степени огнестойкости этих зданий I и II;
  • 20 м - при степени III;
  • 24 м - при степени IV и V.

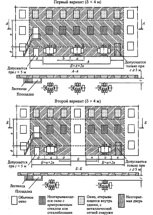
При установке у стен производственных зданий с категорией помещения Г и Д маслонаполненных трансформаторов с массой масла 60 кг и более, электрически связанных с оборудованием, установленным в этих зданиях, разрешаются расстояния менее указанных. При этом, на расстоянии от них более 10 м и вне пределов участков шириной 'Б' (рис. 4.2.13) специальных требований к стенам, окнам и дверям зданий не предъявляется.

При расстоянии менее 10 м до трансформаторов в пределах участков шириной 'Б' должны выполняться следующие требования:

1) до высоты 'Д' (до уровня ввода трансформаторов) окна не допускаются;

2) при расстоянии 'г' менее 5 м и степенях огнестойкости зданий IV и V стена здания должна быть выполнена по I степени огнестойкости и возвышаться над кровлей, выполненной из сгораемого материала, не менее чем на 0,7 м;

3) при расстоянии 'г' менее 5 м и степенях огнестойкости зданий I, II, III а также при расстоянии 'г' 5 м и более без ограничения по огнестойкости на высоте от 'д' до 'д'+'е' допускаются неоткрывающиеся окна с заполнением армированным стеклом или стеклоблоками с рамами из несгораемого материала; выше 'д'+'е' - окна, открывающиеся внутрь здания, с проемами, снабженными снаружи металлическими сетками с ячейками не более 25х25 мм;

4) при расстоянии 'г' менее 5 м на высоте менее 'д', а при 'г' 5 м и более на любой высоте допускаются двери из несгораемых или трудносгораемых материалов с пределом огнестойкости не менее 60 мин;

5) вентиляционные приемные отверстия в стене здания при расстоянии 'г' менее 5 м не допускаются; вытяжные отверстия с выбросом незагрязненного воздуха в указанном пределе допускаются на высоте 'д';

6) при расстоянии 'г' от 5 до 10 м вентиляционные отверстия в ограждающих конструкциях кабельных помещений со стороны трансформаторов на участке шириной 'Б' не допускаются.

Приведенные на рис. 4.2.13 размеры 'а'-'г' и 'А' принимаются до наиболее выступающих частей трансформаторов на высоте не более 1,9 м от поверхности земли. При единичной мощности трансформаторов до 1,6 МВ·А расстояния 'в' ≥1,5 м; 'е' ≥8 м; более 1,6 МВ·А 'в' ≥2 м; 'е' ≥10 м. Расстояние 'б' принимается по 4.2.217, расстояние 'г' должно быть не менее 0,8 м.

Требования настоящего пункта распространяются также на КТП наружной установки.


Рис. 4.2.13. Требования к открытой установке маслонаполненных трансформаторов у зданий с производствами категорий Г и Д

4.2.69. Для предотвращения растекания масла и распространения пожара при повреждениях маслонаполненных силовых трансформаторов (реакторов) с количеством масла более 1 т в единице должны быть выполнены маслоприемники, маслоотводы и маслосборники с соблюдением следующих требований:

1) габариты маслоприемника должны выступать за габариты трансформатора (реактора) не менее чем на 0,6 м при массе масла до 2 т; 1 м при массе от 2 до 10 т; 1,5 м при массе от 10 до 50 т; 2 м при массе более 50 т. При этом габарит маслоприемника может быть принят меньше на 0,5 м со стороны стены или перегородки, располагаемой от трансформатора (реактора) на расстоянии менее 2 м;

2) объем маслоприемника с отводом масла следует рассчитывать на единовременный прием 100% масла, залитого в трансформатор (реактор).

Объем маслоприемника без отвода масла следует рассчитывать на прием 100% объема масла, залитого в трансформатор (реактор), и 80% воды от средств пожаротушения из расчета орошения площадей маслоприемника и боковых поверхностей трансформатора (реактора) с интенсивностью 0,2 л/с·м2 в течение 30 мин;

3) устройство маслоприемников и маслоотводов должно исключать переток масла (воды) из одного маслоприемника в другой, растекание масла по кабельным и др. подземным сооружениям, распространение пожара, засорение маслоотвода и забивку его снегом, льдом и т.п.;

4) маслоприемники под трансформаторы (реакторы) с объемом масла до 20 т допускается выполнять без отвода масла. Маслоприемники без отвода масла должны выполняться заглубленной конструкции и закрываться металлической решеткой, поверх которой должен быть насыпан слой чистого гравия или промытого гранитного щебня толщиной не менее 0,25 м, либо непористого щебня другой породы с частицами от 30 до 70 мм. Уровень полного объема масла в маслоприемнике должен быть ниже решетки не менее чем на 50 мм.

Удаление масла и воды из маслоприемника без отвода масла должно предусматриваться передвижными средствами. При этом рекомендуется выполнение простейшего устройства для проверки отсутствия масла (воды) в маслоприемнике;

5) маслоприемники с отводом масла могут выполняться как заглубленными, так и незаглубленными (дно на уровне окружающей планировки). При выполнении заглубленного телеприемника устройство бортовых ограждений не требуется, если при этом обеспечивается объем маслоприемника, указанный в п.2.

Маслоприемники с отводом масла могут выполняться:

с установкой металлической решетки на маслоприемнике, поверх которой насыпан гравий или щебень толщиной слоя 0,25 м;

без металлической решетки с засыпкой гравия на дно маслоприемника толщиной слоя не менее 0,25 м.

Незаглубленный маслоприемник следует выполнять в виде бортовых ограждений маслонаполненного оборудования. Высота бортовых ограждений должна быть не более 0,5 м над уровнем окружающей планировки.

Дно маслоприемника (заглубленного и незаглубленного) должно иметь уклон не менее 0,005 в сторону приямка и быть засыпано чисто промытым гранитным (либо другой непористой породы) гравием или щебнем фракцией от 30 до 70 мм. Толщина засыпки должна быть не менее 0,25 м.

Верхний уровень гравия (щебня) должен быть не менее чем на 75 мм ниже верхнего края борта (при устройстве маслоприемников бортовыми ограждениями) или уровня окружающей планировки (при устройстве маслоприемников без бортовых ограждений).

Допускается не производить засыпку дна маслоприемников по всей площади гравием. При этом на системах отвода масла от трансформаторов (реакторов) следует предусматривать установку огнепреградителей;

6) при установке маслонаполненного электрооборудования на железобетонном перекрытии здания (сооружения) устройство маслоотвода является обязательным;

7) маслоотводы должны обеспечивать отвод из маслоприемника масла и воды, применяемой для тушения пожара, автоматическим стационарными устройствами и гидрантами на безопасное в пожарном отношении расстояние от оборудования и сооружений: 50% масла и полное количество воды должны удаляться не более чем за 0,25 ч. Маслоотводы могут выполняться в виде подземных трубопроводов или открытых кюветов и лотков;

8) маслосборники должны предусматриваться закрытого типа и должны вмещать полный объем масла единичного оборудования (трансформаторов, реакторов), содержащего наибольшее количеств масла, а также 80% общего (с учетом 30-минутного запаса) расхода воды от средств пожаротушения. Маслосборники должны оборудоваться сигнализацией о наличии воды с выводом сигнала на щит управления. Внутренние поверхности маслоприемника, ограждения маслоприемника и маслосборника должны быть защищены маслостойким покрытием.

4.2.70. На ПС с трансформаторами 110-150 кВ единичной мощностью 63 МВ·А и более и трансформаторами 220 кВ и выше единичной мощностью 40 МВ·А и более, а также на ПС с синхронными компенсаторами для тушения пожара следует предусматривать противопожарный водопровод с питанием от существующей внешней сети или от самостоятельного источника водоснабжения. Допускается вместо противопожарного водопровода предусматривать забор воды из прудов, водохранилищ, рек и других водоемов, расположенных на расстоянии до 200 м от ПС с помощью передвижных средств пожарной техники.

На ПС с трансформаторами 35-150 кВ единичной мощностью менее 63 МВ·А и трансформаторами 220 кВ единичной мощностью менее 40 МВ·А противопожарный водопровод и водоем не предусматривается.

4.2.71. КРУН и КТП наружной установки должны быть расположены на спланированной площадке на высоте не менее 0,2 м от уровня планировки с выполнением около шкафов площадки для обслуживания. В районах с высотой расчетного снежного покрова 1,0 м и выше и продолжительностью его залегания не менее 1 мес рекомендуется установка КРУН и КТП наружной установки на высоте не менее 1 м.

Расположение устройства должно обеспечивать удобные выкатывание и транспортировку трансформаторов и выкатной части ячеек.

Смотрите другие статьи раздела Правила устройства электроустановок (ПУЭ).

Читайте и пишите полезные комментарии к этой статье.

<< Назад

Последние новости науки и техники, новинки электроники:

Луна поглощает воздух нашей планеты 22.01.2026

Взаимодействие Земли и Луны оказывается не только гравитационным. Новые исследования показывают, что наш естественный спутник постепенно "поглощает" крошечные фрагменты атмосферы Земли, используя для этого солнечный ветер и магнитное поле нашей планеты. Этот процесс исследователи называют космическим каннибализмом. Еще во времена миссий "Аполлон" в 1970-х годах ученые обнаружили в лунном реголите необычные следы воды, углекислого газа, гелия и азота. Стало ясно, что часть этих веществ, включая ионы азота, попала на Луну из верхних слоев земной атмосферы. Долгое время считалось, что подобная передача могла происходить только до того, как Земля сформировала свое магнитное поле. Магнитосфера, как считалось, должна была защищать планету и блокировать утечку атмосферных частиц в космос. Новое моделирование показало, что это представление неверно. Ученые объединили данные лунных образцов с компьютерными моделями и выяснили, что поток ионов усиливается, когда Луна проходит через так ...>>

Игровой компьютер Asus ROG G1000 22.01.2026

Компания Asus представила ROG G1000 - устройство, которое сочетает мощнейшие комплектующие с уникальной системой визуализации, превращая корпус компьютера в полноценный элемент шоу. Главной особенностью новинки стали три голографических вентилятора AniMe Holo, установленных в отдельных стеклянных камерах. Главный вентилятор диаметром 380 мм оснащен от 680 до 720 светодиодов, а два дополнительных вентилятора размером 215 мм имеют по 384-404 светодиода. Они способны воспроизводить голографические изображения, анимации и видео в форматах MP4, GIF, JPEG и PNG, создавая эффект "живых" панелей внутри корпуса. Представители Asus подчеркивают, что эти вентиляторы не участвуют в охлаждении и предназначены исключительно для визуальных эффектов. Управление анимациями осуществляется через программу Armoury Crate, позволяющую пользователю персонализировать отображение по собственному вкусу. Для поддержания оптимальной температуры компонентов ROG G1000 оснащен 420-мм жидкостным охладителем ...>>

Дефицит витамина B12 удваивает риск депрессии 21.01.2026

Питание и баланс микроэлементов играют ключевую роль не только для физического, но и для психического здоровья. Недавние исследования ирландских ученых показывают, что недостаток витамина B12 способен значительно повышать риск развития депрессии у пожилых людей, влияя на работу нервной системы и общее самочувствие. Витамин B12 необходим для правильного формирования эритроцитов, поддержания нервной системы и синтеза ДНК. Его дефицит может проявляться широким спектром симптомов: усталостью, слабостью, запорами, потерей аппетита и веса. У некоторых людей наблюдаются нарушения памяти, дезориентация и снижение когнитивных функций, доходящее до деменции. Особое внимание ученых привлекает анемия, которая является одним из самых опасных последствий недостатка B12. Она может возникать также при дефиците других витаминов группы B, включая фолиевую кислоту, и требует ранней диагностики и коррекции для предотвращения необратимых изменений в организме. Новое исследование показало, что у по ...>>

Случайная новость из Архива

Биополимеры против нефтепродуктов 16.12.2015

Благодаря использованию биологических материалов, которые заменили нефтяное сырье, компании Ford удалось существенно снизить загрязнение окружающей среды, сэкономить на производстве и уменьшить вес автомобилей.

Одной из главных задач автомобильной отрасли, концерн Ford считает заботу об окружающей среде. Применение воспроизводимых природных материалов и переработанного сырья позволило добиться значительных результатов в отношении снижения выбросов углекислого газа и экономии нефти, которые затрачиваются, например, на создание интерьера салона. Кроме того, автопроизводитель сохраняет примерно 10 млн. долларов в год, используя переработанные материалы.

Майра Магнани, специалист по работе с биологическими материалами рассказала нам, как рециркуляция природных материалов используется в создании автомобилей Ford. Например, на один автомобиль требуется около 70 кг резины. Корни одуванчика в этом плане являются натуральным источником для получения латекса.

Соевые бобы применяются при изготовлении подушек, подголовников и спинок сидений, а также обивки крыши. Впервые соя была применена для изготовления сидений в модели Ford Mustang в 2008 году. На каждый "Форд", построенный в Северной Америке, уходит 31 251 соевый боб. Использование этого продукта уменьшает выбросы углекислого газа более чем на 9 млн. кг. в год и экономит 2,3 млн. кг. нефти.

Пшеничная солома используется при изготовлении пластика. "Соломенный пластик" применяется, например, для создания систем хранения внутри салона Ford Flex. Его использование позволяет экономить на производстве 9000 кг. нефти и сокращает выброс углекислого газа на 13 500 кг. в год. Кроме того, применение нового пластика позволяет уменьшить вес автомобиля для большей экономии топлива.

Полиактидный полимер (PLA), применяемый при изготовлении ковриков, обивки и отделки салона автомобиля, создан на 100% из кукурузы и имеет ряд преимуществ по сравнению с пластиком на нефтяной основе. Во-первых, "кукурузный полимер" дешевле и экологичнее, а во-вторых - является биоразлагаемым (в срок от 90 до 120 дней).

Другие интересные новости:

▪ Infineon представила самый миниатюрный GPS-приемник

▪ Майнинговая ферма с солнечными панелями

▪ SD-M1912 - новый драйвер DVD-ROM

▪ Микрофон в ухе

▪ Спиральный свет

Лента новостей науки и техники, новинок электроники

 

Интересные материалы Бесплатной технической библиотеки:

▪ раздел сайта Видеотехника. Подборка статей

▪ статья Урология. Конспект лекций

▪ статья Что такое Розеттский камень? Подробный ответ

▪ статья Электромонтер ВЛС и радиофикации. Типовая инструкция по охране труда

▪ статья Определитель идентичности веществ. Энциклопедия радиоэлектроники и электротехники

▪ статья Универсальный преобразователь напряжения, 5 вольт. Энциклопедия радиоэлектроники и электротехники

Оставьте свой комментарий к этой статье:

Имя:


E-mail (не обязательно):


Комментарий:





Главная страница | Библиотека | Статьи | Карта сайта | Отзывы о сайте

www.diagram.com.ua

www.diagram.com.ua
2000-2026