Бесплатная техническая библиотека
Не насосом, а баллончиком. Советы туристу

Справочник / Советы туристу
Комментарии к статье
Каждый раз, когда всей семьей собираемся на отдых, передо мной стоит задача проверить состояние наших велосипедов. Как правило, все узлы находятся в полном порядке, за исключением шин: они требуют периодической подкачки. Вот тут приходится иногда и попотеть, да и много времени уходит на это.
Надо было придумать устройство, которое заменило бы насос. Основные его узлы были мной позаимствованы у... домашнего сифона для газирования воды. Принцип работы устройства весьма прост. Углекислота попадает внутрь, там испаряется, создавая избыточное давление, которое шинам и необходимо.
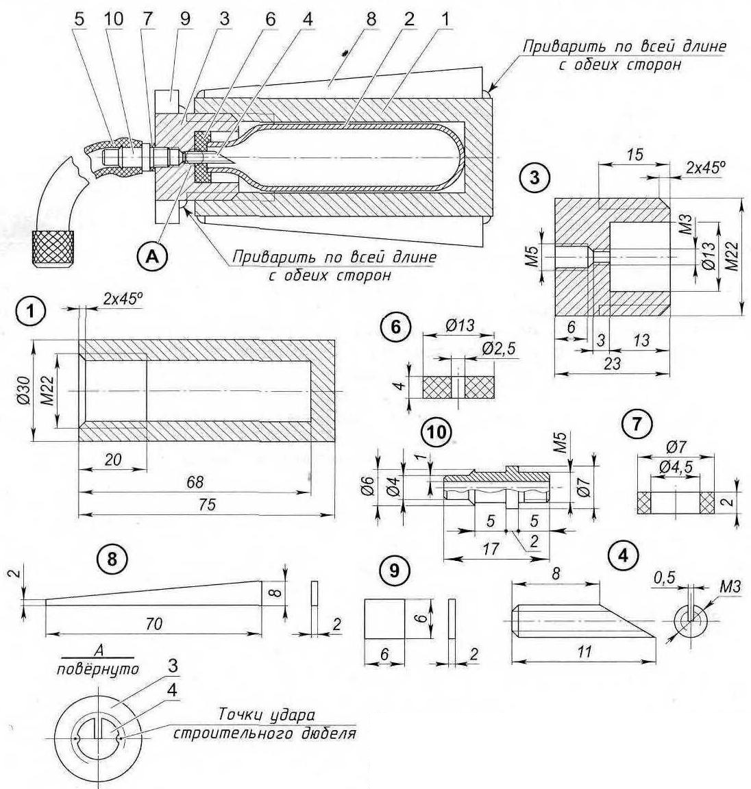
Общий вид устройства для подкачивания шин показан на рисунке. Оно состоит из корпуса 1, в который вставляется баллончик 2 с углекислотой, крышки 3, на которой имеется игла 4 для прокалывания пробки баллончика. К корпусу прикручивается шланг 5 от велонасоса. Герметичность соединений достигается за счет резиновых прокладок 6 и 7.
Корпус и крышку вытачивают на токарном станке из стали. В крышке просверливают два отверстия: диаметром 2,5 мм на глубину 3 мм под резьбу М3 - для установки иглы и диаметром 4,2 мм на глубину 6 мм под резьбу М5 - для установки шланга от велонасоса. К корпусу и крышке приваривают по две пластины 8 и 9 - ребра для удобства закручивания.
Иглу для прокалывания баллончика с углекислотой изготавливают из винта М3 длиной не менее 20 мм. С него спиливают головку, делают пилкой по металлу прорезь на длину винта глубиной 1,5 мм (для прохода углекислоты), а затем затачивают в виде иглы. После установки иглы в крышке контровку производят ударами молотка по строительному дюбелю, острие которого сминает резьбу иглы и крышки (поз.З, внизу).

Баллончик-насос: 1 - корпус; 2-баллончик; .5 - крышка; 4-игла; 5 - велошланг; 6,7-прокладки; 8,9 - ребра (для удобства закручивания); 10 - штуцер велошланга (нажмите для увеличения)
К крышке снаружи приклеивают клеем "Момент" резиновую прокладку, изготовленную по чертежу.
Шланг тоже подлежит переделке. С него удаляют ту часть, которая привинчивается к насосу. Изготовляют подобный ей штуцер, но с метрической резьбой М5. Шланг соединяют с корпусом через резиновую прокладку.
Работа по накачке шин производится следующим образом. Баллончик с углекислотой устанавливают в корпусе, на него надевают крышку и слегка навинчивают. Велошланг соединяется с крышкой, а затем с ниппелем велошины. Вращением корпуса и крышки добиваются прокалывания баллончика с углекислотой. Об этом будет свидетельствовать небольшое шипение. После стравливания содержимого баллончика необходимо открутить велошланг от шины. Если давление в шине окажется недостаточным для нормальной езды, необходимо будет повторить заправку ее углекислотой. Если давление окажется больше, нежели необходимо, то следует стравить из шины излишек углекислоты.
Данное устройство можно с успехом применять и для накачки мячей. Пригодится оно и любителям водного туризма, рыбакам и охотникам: мгновенно накачает матрас или резиновый спасательный круг, надувные подушки, сиденья. С помощью данного устройства можно также заправлять аэрозольный баллончик, соответственно доработанный.
Автор: С.Семенов
Рекомендуем интересные статьи раздела Советы туристу:
▪ Картографические проекции
▪ Лиановый узел
▪ Палатка выходного дня
Смотрите другие статьи раздела Советы туристу.
Читайте и пишите полезные комментарии к этой статье.
<< Назад
Последние новости науки и техники, новинки электроники:
Оптимальная продолжительность сна
12.11.2025
Сон играет ключевую роль в поддержании здоровья, когнитивных функций и общего самочувствия. Несмотря на широко распространенный стереотип о восьмичасовом сне, последние исследования показывают, что оптимальная продолжительность сна для большинства здоровых взрослых ближе к семи часам.
Эволюционный биолог из Гарварда, Дэниел Э. Либерман, утверждает, что традиционная норма восьми часов сна - это скорее культурное наследие индустриальной эпохи, чем биологическая необходимость. По его словам, полевые исследования, проведенные в сообществах, не использующих электричество, показывают, что средняя продолжительность сна составляет 6-7 часов, что значительно отличается от общепринятого стандарта.
Современные эпидемиологические данные подтверждают этот взгляд. Исследования выявили так называемую "U-образную кривую" зависимости между продолжительностью сна и рисками для здоровья. Минимальные показатели заболеваемости и смертности наблюдаются именно у людей, спящих около семи часов в сутки. ...>>
Дефицит кислорода усиливает выброс закиси азота
12.11.2025
Парниковые газы играют ключевую роль в изменении климата, а закись азота (N2O) - один из наиболее опасных среди них. Этот газ не только втрое сильнее углекислого газа в удержании тепла, но и разрушает озоновый слой. Недавнее исследование американских ученых показало, что микробы в зонах с низким содержанием кислорода активно производят N2O, усиливая глобальные климатические риски.
Команда из Университета Пенсильвании изучала прибрежные воды у Сан-Диего и провела наблюдения на глубинах от 40 до 120 метров в Восточной тропической северной части Тихого океана - одной из крупнейших зон дефицита кислорода. Исследователи сосредоточились на том, как морские микроорганизмы превращают нитраты в закись азота.
В ходе работы выяснилось, что существует два пути образования N2O. Один путь начинается с нитрата, другой - с нитрита. На первый взгляд более короткий путь должен быть эффективнее, однако микробы, использующие нитрат, продуцируют больше газа, поскольку этот "сырьевой" источник более д ...>>
Омега-3 помогают молодым кораллам выживать
11.11.2025
Сохранение коралловых рифов становится все более актуальной задачей в условиях глобального изменения климата. Молодые кораллы особенно уязвимы на ранних стадиях развития, когда стрессовые условия и нехватка питательных веществ могут привести к высокой смертности. Недавнее исследование ученых из Технологического университета Сиднея показывает, что специальные пищевые добавки способны существенно повысить выживаемость личинок кораллов.
В ходе работы исследователи разработали особый состав "детского питания" для коралловых личинок. В него вошли масла, богатые омега-3 жирными кислотами, а также важные стерины, необходимые для формирования клеточных мембран. Личинки, получавшие эти добавки, развивались быстрее, становились крепче и демонстрировали более высокую устойчивость к стрессовым факторам.
Особое внимание ученые уделили липидам. Анализ показал, что личинки активно усваивают эти вещества, что напрямую влияет на их жизнеспособность. Стерины, содержащиеся в корме, повышают устойчи ...>>
Случайная новость из Архива Видеокапсула с дистанционным управлением как альтернатива эндоскопу
14.06.2023
Использование видеокапсул в качестве эндоскопического инструмента уже имеет некоторую историю, однако ранее их невозможно было контролировать, так как они полностью полагались на силу тяжести и перистальтику желудочно-кишечного тракта для передвижения. Однако исследователям удалось преодолеть это ограничение, создав таблетку с камерой и системой дистанционного управления.
Ученые из Школы медицины и медицинских наук Университета Джорджа Вашингтона разработали метод, который позволяет врачам управлять миниатюрной видеокапсулой под названием NaviCam, которую пациент проглатывает, и она проходит через всю пищеварительную систему, позволяя визуализировать и фотографировать потенциально проблемные участки. Для передвижения капсулы используются внешний магнит и джойстики.
"Традиционная эндоскопия - это инвазивная процедура, а также дорогостоящая. Видеокапсула с магнитным управлением может быть использована в качестве быстрого и простого способа диагностики проблем с верхними отделами пищеварительной системы, таких как язва или рак желудка", - говорит профессор неотложной медицины Школы медицины и медицинских наук Университета Джорджа Вашингтона, Эндрю Мельтцер.
Технология находится на стадии испытаний, однако первые результаты были обнадеживающими. Врачи смогли контролировать капсулу во всех основных частях желудка 40 пациентов с точностью визуализации на уровне 95%. Участники испытаний также проходили традиционную эндоскопию для подтверждения отсутствия поражений с высоким риском.
Первоначально камера предназначена для обнаружения кровотечений, воспалений и других проблем, а также может автоматически передавать видео и изображения для последующего просмотра. Предыдущие официальные исследования показали, что использование видеокапсулы не представляет опасности для здоровья, но она не может использоваться для проведения биопсии, так как остается внутри организма и естественным образом выходит из него.
В апреле этого года в Украине была проведена первая успешная процедура обследования ребенка с использованием видеокапсулы (без дистанционного управления) в Национальной детской специализированной больнице "Охматдит". Технология может использоваться для обследования детей в возрасте от 2 лет, и во время процедуры маленький пациент может свободно двигаться - прыгать, ходить, бегать, сидеть, лежать или играть. Через час после процедуры позволяется пить, а через три часа - принимать пищу.
|
Другие интересные новости:
▪ Загадка эволюции мозга человека разгадана
▪ Однокорпусный цифровой датчик ультрафиолетового излучения
▪ Самообновляемый вечный компьютер
▪ Подслащенные напитки вызывают ожирение и износ зубов
▪ Деньги с микросхемой
Лента новостей науки и техники, новинок электроники
Интересные материалы Бесплатной технической библиотеки:
▪ раздел сайта Детекторы напряженности поля. Подборка статей
▪ статья Рональд Уилсон Рейган. Знаменитые афоризмы
▪ статья Много ли деталей в конструкторе Лего? Подробный ответ
▪ статья Рыбацкий узел. Советы туристу
▪ статья Устройство SOS. Энциклопедия радиоэлектроники и электротехники
▪ статья Синхродин. Энциклопедия радиоэлектроники и электротехники
Оставьте свой комментарий к этой статье:
Главная страница | Библиотека | Статьи | Карта сайта | Отзывы о сайте

www.diagram.com.ua
2000-2025