Menu Home

Бесплатная техническая библиотека для любителей и профессионалов Бесплатная техническая библиотека


Парусный катамаран. Личный транспорт

Личный транспорт: наземный, водный, воздушный

Справочник / Личный транспорт: наземный, водный, воздушный

Комментарии к статье Комментарии к статье

Не успеют реки и озера очиститься ото льда, как тысячи и тысячи приверженцев водного туризма начинают готовиться к новому сезону. Достают из кладовок и гаражей свои "складушки" и "надувнушки", выводят из зимних укрытий яхты и катера.

Тем, кто живет недалеко от воды или имеет в своем распоряжении автотранспорт, неведомы проблемы, отягощающие жизнь "безлошадного" любителя водных путешествий. Много ли на себе унесешь? Только "складушку" или "надувнушку". Да и то не один, поскольку даже плотно упакованное плавсредство требует отдельного носильщика. А еще палатка, провиант...

Как быть человеку, желающему побыть с природой наедине? Да не на байдарке или надувной лодке, а скажем, на парусном катамаране? Искать помощника, чтобы добраться до воды? Но тогда как возвращаться - снова искать помощника?

Многие эти вопросы снимаются, если воспользоваться опытом москвича Д.А.Вахламова. Он предложил оригинальную конструкцию парусного катамарана "Царевна Лягушка", которая обладает двумя очень важными достоинствами. Во-первых, она сделана в основном из древесины сосны - материала в России весьма распространенного. А это значит, что "Царевну" можно воспроизвести практически в любом уголке нашей необъятной страны. Было бы желание. Во-вторых, катамаран сконструирован так, что разобрать, перевезти и собрать его вполне по силам одному человеку. Палуба "Царевны" довольно просторная: на ней свободно размещается экипаж из четырех "матросов" - вся семья конструктора.

По просьбе редакции Дмитрий Ананьевич рассказал об устройстве своего катамарана.

Основные технические характеристики

  • Длины, м.........3,60
  • Ширина, м.........1,60
  • Диаметр поплавков, м.........0,40
  • Высота мачты, м.........4,265
  • Осадка при полной нагрузке, м: поплавками.........0,14
  • швертом.........0,69
  • Площадь паруса, м2.........4,0
  • Площадь шверта и руля, м2.........0,37
  • Число пассажиров, чел.........4
  • Грузоподъемность, кг.........360
  • Масса максимальная с шасси, кг: с полной оснасткой.........60
  • с неполной оснасткой.........53

Парусный катамаран
Рис. 1. Парусный катамаран "Царевна Лягушка"

Лучшие воспоминания моего детства и юности связаны с тихими речками под Нижним Новгородом, с величественными озерами Южного Урала и, конечно, с лодкой.

В Москве, глядя на полчища "рычащих" машин, я решил, что и в городских условиях найдется выход, ведь вокруг города немало рек и водохранилищ Но что предпочесть - байдарку? Сидеть в ней неудобно, места для туристского снаряжения мало, да и плавать можно только по спокойной воде, в крутую волну на акваторию водохранилища не выйдешь. "Надувнушку"? На ней можно переплыть и океан. Можно, но очень медленно. Мачта с парусом, шверцы, руль скорости добавят, зато вместимость значительно уменьшится. Лодка из дюралюминиевых листов, соединенных прорезиненной тканью? Несерьезно: из-за ее габаритов даже в метро не пустят. "Подкова" типа "Гриф"? Не спорю -кому что нравится. Везите на автомобиле, тащите на себе тяжелый мотор и канистры, наслаждайтесь скоростью. Мне скорость и треск мотора мешают общаться с природой...

И тут один мой товарищ посоветовал: катамаран! Я воспользовался его советом - и через некоторое время у меня дома появились деревянная рама, поплавки, мачта, парус.

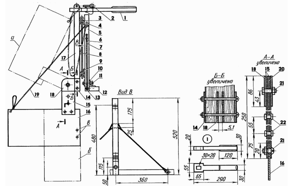
Парусный катамаран
Рис. 2. Устройство катамарана (нажмите для увеличения): 1 - перо руля; 2 - баллер; 3 - поплавок (2 шт.); 4 - бимс (4 шт.); 5 - стрингер (4 шт.); 6 - стойка руля; 7 - румпель; 8 - рундук (2шт.);9 - весло (2 шт.); 10 - гика-шкот; 11 -оттяжка гика; 12 - гик; 13 -парус; 14 - лата(4шт.); 15 - мачта; 16 - вертлюг гика; 17 - подставка; 18 - ванта (4 шт.); 19 - натяжитель ванты, регулируемый (4 шт.); 20 - палуба; 21 - соединитель стрингера (4 шт.); 22 - уключина (2 шт.); 23 - подуключина (2 шт.); 24 - балка швертовая; 25 - растяжка тросов шверта; 26 - ось шверта; 27 - шверт; 28 - подрундучник (4 шт.)

В собранном виде катамаран, который был назван "Царевна Лягушка", предстаален на рисунке 2. Управлять им довольно просто и необыкновенно интересно. Парус площадью 4 м2 обеспечивает хорошую скорость при умеренном ветре и достаточную безопасность при шквальном. Так что за пассажиров можно не волноваться. "Матросами" катамарана, например, были мой пятилетний ребенок, жена, страдающая водобоязнью, и девяностолетний тесть.

Если вы решите построить себе подобное плавсредство, то особых столярных и слесарных навыков для этого вам не потребуется. Но время, аккуратность и трудолюбие будут необходимы.

Подберите качественный материал. Предпочтительна сосна: за ровные слои ее древесины без сучков и малый удельный вес. При достаточной прочности и упругости. Желательна древесина многолетней выдержки в сухом месте. Сырую не используйте - ее обязательно "поведет", и все будет безнадежно испорчено.

РАМА. Целесообразно начинать с нее. Рама состоит из четырех продольных брусьев - стрингеров и четырех поперечных - бимсов. Стрингеры цельные слишком длинны и неудобны при транспортировке, поэтому их лучше сделать составными из двух частей. Длина частей различна, так как на соединяющих их уголках крепятся подуключены, находящиеся на удобном для гребца расстоянии.

Аккуратно выстругайте, следя за тем, чтобы не было перекоса, восемь брусков сечением 40x40 мм: четыре из них (длиной по 1340 мм) будут носовыми частями стрингеров, четыре (длиной по 1110 мм) - кормовыми.

Приготовьте четыре дюралюминиевых уголка 40x40x4 мм длиной 500 мм.

Для соединения частей стрингеров с уголками понадобятся 16 болтов М8 длиной 50 мм с гайками-барашками", металлическими шайбами диаметром 20 и толщиной 2,5 мм и резиновыми амортизационными шайбами толщиной 2,5 мм, диаметр которых равен диаметру головки болта.

Положите уголки на стрингеры: середина длины каждого уголка должна совпадать со стыком их частей. Вертикальные полки уголков должны располагаться так: на первом и третьем стрингерах - слева, на втором и четвертом - справа.

Кстати, стык частей каждого стрингера неплотный - с зазором. Без него в нижней части стыка на волнах произойдет сильное сжатие, и соединительный уголок может повырывать болты. Поэтому на время сверления отверстий вставьте для образования зазора технологические вкладыши из фанеры толщиной 4 мм.

Но как бы вы не старались, просверлить отверстия абсолютно точно не удастся. Поэтому, чтобы не перепутать части стрингеров при последующих многократных сборках-разборках, пометьте их. Если стать в корме, то слева будет первый стрингер. Четко надпишите его носовую часть: "Н1", а кормовую - "К1". Второй стрингер - "Н2" и "К2". И так далее. Обозначьте также соединительные уголки лунками, сделанными сверлом: "о", "оо", "ооо" и "оооо".

Болты в отверстия не должны входить плотно. С одной стороны, необтертая древесина на воде обязательно набухнет и при разборке рамы отверстия неизбежно будут испорчены. С другой - болтам не нужна и лишняя свобода, расшатывающая конструкцию.

Чтобы головки болтов не прорвали поплавки, их надо "утопить" в тело стрингера. Глубина гнезда под головку должна равняться сумме толщин металлической и резиновой шайб и головки, диаметр - четко по диаметру металлической шайбы - 20 мм. Последнюю обязательно

приклейте к дереву "эпоксидкой" с усилием завинченного болта. Если гнездо будет хоть немного больше по диаметру, древесина под шайбой промнется и выкрошится, если меньше, то заметно ослабнет стрингер. Без приклеенной шайбы соединение разболтается за один - два сезона, с ней же рама практически не изнашивается.

Парусный катамаран
Рис.3. Типовое соединение частей стрингеров и бимсов: 1 - часть стрингера, кормовая (сосновый брусок 40x40, L1110); 2,5 - бимсы (сосновый брусок 75x30, L1380); 3 - соединитель (дюралюминиевый уголок 40x40x4, L500); 4 - часть стрингера, носовая (сосновый брусок 40x40, L1340); 6 - гайка-"6арашек" М8; 7 - болт М8; 8 - шайбы стальные; 9 - шайба резиновая

Выстругайте бимсы - четыре бруска сечением 75x30 мм и длиной 1380 мм. Оптимизируйте их массу, сострогав "на ус" концы (рис. 3). Положите бимсы на стрингеры и также пометьте: первый от носа бимс слева - "Л1, справа - "П1". Второй - "Л2" и "П2". И так далее. Просверлите отверстия - такие же, как в стрингерах.

Сделайте подрундучники: носовые - сечением 58x24 мм и длиной 1010 мм, кормовые - сечением 45x23 мм и длиной 770 мм. Пометьте их какими-либо надписями.

Парусный катамаран
Рис. 4. Типовое крепление подрундучника: 1 - штифт (гвоздь диаметром 5); 2 - стопор (гвоздь диаметром 2); 3 - подрундучник; 4 - бимс; 5- шайба резиновая диаметром 20x15; 6  шайба стальная

Крепление подрундучников к бимсам простое, но эффективное (рис.4). Причем используются в нем обыкновенные гвозди. С уважением отнеситесь к гвоздю - он совершенствовался столетиями. Там, где каленый стальной или дюралюминиевый штыри лопнут, пластичный гвоздь выстоит, в крайнем случае, согнется.

Конечно, на приведенных рисунках многое упрощено. Придайте изготовленным вами деталям некоторую округлость, зашкурьте их и несколько раз покройте олифой.

Вот, собственно, и все, что нужно для рамы. Если вы сделаете ее добросовестно, прочность и долговечность гарантированы. За многие годы эксплуатации "Царевны Лягушки", например, ни одна деревянная деталь ее рамы не сломалась и даже не треснула.

ПАЛУБУ выкроите из брезента (больше подходит тот, каким покрывают кузова грузовых автомобилей). Длина палубы должна быть равна длине рамы плюс припуск на карманы для носового и кормового шпангоутов; ширина - расстоянию между вторым и третьим стрингером плюс припуск на подворот. Подрубите края суровой ниткой широким двойным швом от руки. Снизу пришейте два широких лоскута брезента, чтобы образовались карманы для средних бимсов. Прорежьте и обметайте отверстия под болты. Когда вы прикрепите бимсы к стрингерам, палуба должна быть хорошо натянутой. Подрундучники поместите на палубе.

РУНДУКИ мало чем отличаются от обыкновенных ящиков. Необходима только большая точность изготовления, так как при транспортировке носовой рундук вставляется в кормовой.

Конструкция рундуков одинаковая, применяемые материалы недефицитные: фанера толщиной 3-4 мм, сосновые рейки сечением 20x15 мм, а также мелкие шурупы, эпоксидный клей, рояльные петли (для крышек-сидений).

Габариты кормового (большего) рундука - 800x285x225 мм. Стачайте для него из плотной ткани чехол, к которому пришейте застежки в виде петель и пуговиц-палочек и широкий опоясывающий брезентовый ремень с поперечными кожаными ремешками. К последним прикрепите лямки от рюкзака. Чехол на воде не снимайте. Чтобы было мягко сидеть и удобно носить, между крышкой-сиденьем и чехлом поместите лист поролона.

Носовой рундук должен легко выниматься из кормового. Для этого просверлите в его боках по два отверстия и вставьте веревочные ручки-петли. Чехол стачайте только для крышки-сиденья. Вставьте в него изнутри лист поролона, а по краям пришейте кожаные ремни для крепления к рундуку. Сами рундуки привинтите к подрундучникам болтами М6 длиной 45 мм (от бытовой сантехники) с гайками - "барашками".

Парусный катамаран
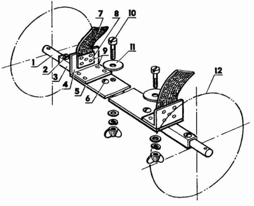
Рис. 5. Уключина (нажмите для увеличения): 1 - рогач (стальной стержень диаметром 14, L210); 2 - намотка уплотнителя (тканевый шнур на эпоксидной смоле); 3 - шайба усиливающая; 4 - ось качания (гвоздь диаметром 4); 5 - весло; 6 - стопор (леска диаметром 1)

УКЛЮЧИНЫ. Если вам не удастся найти заводские металлические уключины (пластиковые не годятся), то сделайте их сами из стальных стержней диаметром 14 и длиной 210 мм. Распилите каждый стержень по оси на глубину 70 мм, наденьте шайбу-усилитель и разогните распиленные концы наподобие рогача (рис. 5). В качестве осей качания весел используйте гвозди диаметром 4 и длиной 65 мм. Вместо шплинтов - кусочки лески-миллиметровки. Уплотнитель намотайте тканевым шнуром на эпоксидной смоле.

Парусный катамаран
Рис. 6. Подуключина в рабочем (а) и сложенном положении (б): 1 - обойма (алюминиевая труба 22x3); 2 - хомут (алюминиевая полоса 22x2); 3 - болт М6; 4 - подкос (алюминиевая труба 20x2); 5 - стрингер четвертый; 6 - оси складывания (алюминиевые заклепки диаметром 6); 7 - соединитель спрингера; 8 - вставка (алюминиевая пластина s7).

ПОДУКЛЮЧИНЫ (рис. 6) изготовьте из алюминиевых труб диаметром 22 мм. Нижние концы их сплющьте, заложив вставки - алюминиевые пластинки толщиной 7 мм. Шарнирно (но не свободно, с натягом) прикрепите их толстыми заклепками к вертикальным полкам соединительных уголков первого и четвертого стрингеров (ближе к корме). К тем же полкам (ближе к носу) подобным образом прикрепите и подкосы из алюминиевых труб круглого (диаметорм 20 мм) или овального сечения. Хомуты сделайте из мягкой алюминиевой пластины (например, от спинки детских саней). В нерабочем положении подуключины и подкосы складываются вдоль соединительных уголков.

Парусный катамаран
Рис. 7. Весло: 1 - ручка (сосна, диаметром 40); 2 - переходник (дюралюминевая труба 42х1); 3 - древко (сосна, диаметром 40); 4 - лопасть (дюралюминиевый лист si ,5); 5 - заклепка (диаметром 4,5 шт.).

ВЁСЛА. Устройство их ясно из рисунка 7. Желательно использовать трубы диаметром 40 мм с гладкой поверхностью внутри и снаружи. Такими качествами обладают легкоатлетические шесты для прыжков в высоту.

ПОПЛАВКИ. Из чего их сделать? Единого рецепта нет, все зависит от того, у кого что имеется. Можно применить легкий двухслойный материал под названием "серебрянка", прорезиненную ткань на хлопчатобумажной или химической основе, палаточную ткань и даже весьма крепкие рукава для перекачки воздуха!

Мои же поплавки диаметром 400 и длиной 3600 мм сделаны из крепких оболочек (ткань их несколько плотнее палаточной), в которые через прорези вставляются и затем накачиваются резиновые или пластиковые шары. Такие поплавки в накачанном состоянии выглядят довольно неплохо.

Какие положительные качества выбранной мною конструкции? Малый вес и надежность, поскольку много "секций". Недостатки? Шершавый материал плохо скользит по воде, "тащит" ее за собой, отчего снижается скорость катамарана. И еще трудно приноровиться равномерно накачивать шары. Кстати, матрасная "надувалка" не годится, нужен насос помощнее, со встроенным манометром.

Парусный катамаран
Рис.8. Выкройка оболочки поплавка

Если решите сделать себе подобные поплавки, то имейте в виду, что реальная длина полотнища оболочки должна быть больше номинальной на 40 мм (припуск на подвороты), ширина - на 60 мм (припуск на шов). При раскрое не забудьте, что сшитые оболочки должны плавно сужаться к концам. Поэтому вырежьте в каждом полотнище по четыре носовых и кормовых оживальной формы клина длиной 760 мм (рис.8) и сшейте прочной ниткой в несколько проходов, оставляя в носу и корме небольшие отверстия для резиновых трубок от крайних шаров. Но прежде обязательно прикрепите наметочными швами к внутренним поверхностям оболочек (напротив середины каждого шара) опоясывающие плотные страховочные ленты, оканчивающиеся тесемками, которые завязываются потом на стрингерах. Если этого не сделать, то в случае разрыва оболочки шары вылетят, как мыльные пузыри. А так они останутся на своих местах.

Парусный катамаран
Рис. 9. Мачта: 1 - секция нижняя; 2- секция средняя; 3 - секция верхняя; 4- шкивы грота-фала; 5 - ось шкива (болт М6); 6 - болт М6; 7 - петля для крючка оттяжки гика (уголок 25x25x3); 8 - тело мачты; 9 - шуруп крепления накладки ликпаза; 10 - накладка ликпаза; 11 - кронштейн вертлюга гика (уголок 40x40x4); 12 - шуруп крепления кронштейна; 13 - вертлюг гика; 14 - вал вертлюга с петлей удержания галсового угла паруса; 15 - шплинт; 16 - болт М8; 17- кронштейн (уголок 25x25x3); 18 - накладки усиливающие (дюралюминиевый лист s1,5); 19 - шуруп крепления накладки

МАЧТА состоит из трех секций: верхней, нижней и средней (рис. 9). Такое членение удобно и при изготовлении, и при транспортировке.

Основной материал мачты - сосновые бруски изначальным сечением 40x40 мм. У средней секции сохраните величину этого сечения по всей длине, у нижней и верхней - постепенно сведите к концам мачты до 35x35 мм.

Полукруглой стамеской вырежьте ликпаз (в нижней секции - примерно до середины). Заготовьте планки толщиной 14 мм - накладки ликпаза по всей его длине. Обстругайте их той же стамеской, чтобы завершить профилировку ликпаза, и прикрепите к секциям мачты эпоксидной смолой и шурупами. Полученный таким образом ликпаз тщательно обработайте шкуркой, добиваясь гладкой поверхности, тогда парус в нем не застрянет и не порвется. Да и всю мачту не мешало бы ошкурить, придав ей так называемый товарный вид.

Концы мачты оборудуйте шкивами для грота-фала (колесами с желобком и осями, взятыми от детского конструктора), а нижнюю ее секцию - еще и вертлюгом гика и петлей для крючка оттяжки гика.

В единое целое секции мачты соединяются с помощью кронштейнов из дюралюминиевого уголка 25x25x3 мм и болтов М8. Оснастите ими верх нижней секции и низ верхней. Концы же средней снабдите ответными усиливающими накладками из дюралюминиевого листа толщиной 1,5 мм, прикрепив их мелкими шурупами. Кстати, не забудьте просверлить четыре отверстия диаметром 8 мм в кронштейнах (в середине их выступающих полок) для карабинов вантов.

На катамаране мачта своим степсом (низом) помещается в подставку, привинчиваемую к подрундучникам за носовым рундуком. Выстругайте подставку из соснового бруска сечением 65x45 мм (высоту 45 мм на концах сведите к 25 мм) и длиной 430 мм. В середине выберите долотом квадратную выемку для степса. Глубина выемки определяется опытным путем: если она мелка, то при резких порывах ветра мачта легко выскакивает: если слишком глубока, то мачту выворачивает с корнем.

Парусный катамаран
Рис. 10. Гик: 1 - накладки (сталь, полоса si,5); 2 - тело гика (сосна); 3 - ликпаз; 4 - петли (сталь, полоса s4); 5 - шуруп

ГИК (рис.10) изготовьте по той же технологии, что и мачту: распилите сосновый брусок сечением 30x30 мм вдоль на две одинаковые планки. Выстругайте ликпаз и щель ликпаза. Соедините планки клеем и ошкурьте гик так, чтобы довести его сечение до 28x28 мм. Укрепите клеевой шов шурупами.

Снабдите передний конец гика петлями - стальными полосами с отверстиями для соединения с вертлюгом гика, расположенным на мачте, а задний конец - стальными накладками для стыковки с ноком гика (крепление петель и накладок - мелкими шурупами, не показанными на рисунках).

Надо заметить, что алюминиевый штырь диаметром 5 мм, соединяющий гик с вертлюгом, должен довольно плотно входить в отверстия петель и свободно - в отверстие вертлюга.

Парусный катамаран
Рис. 11. Нок гика 1 - тело нока (сосна); 2 - шкив; 3 - держатель (сталь, полоса s1,5, 2 шт.); 4 - утка шкотового конца (проволока диаметорм 5); 5 - ликпаз; 6 - накладки (сталь, полоса s4); 7 - болты М6; 8 - ось шкива (сталь, пруток диаметорм 3)

НОК (рис.11) является отъемным продолжением гика. Это вынужденное членение, так как в целом виде гик слишком длинен и неудобен для перевозки. Конструктивно нок подобен гику, поэтому ваши действия по его изготовлению те же. Разница в том, что нок снабжен небольшим металлическим шкивом и проволочной уткой для шкотового конца паруса.

Парусный катамаран
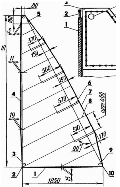
Рис. 12. Парус: 1 -шкаторина нижняя; 2 - угол галсовый; 3,9 - люверсы; 4 - шкаторина передняя; 5 - дощечка фаловая (2 шт.); 6 - лата; 7 - шкаторина задняя; 8 - шов; 10 - угол шкотовый

ПАРУС (рис.12) лучше всего сшить, конечно, из специальной парусной ткани. Но поскольку достать ее очень трудно, да и цена "кусается", то подойдет плотный тик-ластик или другая прочная ткань.

Если ширина рулона ткани 700-900 мм, то выкроенные из нее полотнища необходимо в середине прошить фальшвами с 20-мм подворотами ткани, чтобы будущий парус держал форму. Полотнища укладывайте перпендикулярно задней шкаторине. Один из швов обязательно должен проходить через галсовый угол паруса. Плотные кромки обрежьте, иначе они будут "сборить".

Парусный катамаран
Рис. 13. Фаловый угол паруса: 1 - ликтрос; 2 - заделка ликтроса; 3 - дощечка фаловая: 4 - отверстие для крепления грота; 5 - отверстие для ниток шва; 6 - нитка шва; 7 - парус

Парусный катамаран
Рис. 14. Крепление грота-фала к фаловой дощечке узлом "рыбацкий стык"

Шейте парус самыми широкими стежками, какие есть на машинке, с предельно слабым натяжением нити. На верху паруса симметрично прикрепите фаловую дощечку из двух дюралюминиевых пластинок толщиной 1,5 мм (рис.13): сначала просверлите ряд мелких отверстий по контуру обеих пластинок вместе с парусом, а затем прошейте руками по этим отверстиям толстой ниткой.

Заднюю шкаторину расширьте, сделав "горб", увеличивающий площадь паруса. А чтобы он имел некоторую жесткость, нашейте карманы для лат - длинных дощечек, которые можно сделать из фанеры или школьных чертежных линеек. Латы не выскользнут из карманов, если последние снабдить шнурками и завязать рифовыми узлами. Край задней шкаторины усильте добавочной тканевой полосой.

Переднюю и нижнюю шкаторину кроите дугообразно, чтобы у паруса появилось "пузо" и образовался профиль, без которого катамаран не пойдет против ветра. Края шкаторин закончите швами шириной 15 мм, пришейте к ним по краю паруса ликтрос - толстую крученую хлопчатобумажную веревку, которая войдет в ликпаз мачты и гика при подъеме паруса. Ликтрос проходит от верхнего конца передней шкаторины по всей ее длине, затем по нижней шкаторине и оканчивается у шкотового угла. Пришивая ликтрос, старайтесь, чтобы натяжение его и ткани было одинаковым, а иголка протыкала каждый жгутик веревки.

Парусный катамаран
Рис. 15. Рулевое устройство (нажмите для увеличения): 1 - румпель (фанера s10); 2 - штырь-фиксатор румпеля (сосна, пруток диаметорм 10); 3,9 - петли поворотные (дюралюминий, уголок 25x25x3, 5 шт.); 4 - петля сорлиня (гвоздь диаметорм 3); 5 - стойка руля (сосна, брусок 25x25, L520); 6 - узел крепления растяжки (2 шт.); 7 - растяжка (трос диаметорм 3, 2 шт.); 8 - ось поворотная (сталь, проволока диаметорм 5); 10 - кронштейн стойки (дюралюминий, уголок 40x40x4); 11 - болт М6; 12 - шпангоут четвертый (кормовой); 13 - держатель растяжки (шуруп диаметорм 4 с кожаной шайбой, 2 шт.); 14 - накладки (сталь, лист s2); 15 - пластины баллера подвижные (сталь, лист s1,7); 16 - перо руля (дюралюминий, лист 500x250, s1,5); 17 - древко баллера (сосна, брусок 40x40, L600); 18 - пластины баллера неподвижные (сталь, лист s1,7); 19 - сорлинь; 20 - проставка (сталь, лист s1,7); 21 - болты М6; 22 - заклепки (05); а - перо руля в поднятом положении; 6 - перо руля в глубинной постановке; в - отверстия для крепления пера руля в глубинной постановке

РУЛЕВОЕ УСТРОЙСТВО (рис.15) состоит из румпеля, баллера и поворотного пера руля, которые держатся на стойке, расположенной посредине четвертого (кормового) шпангоута. Стойка к шпангоуту притянута болтом М6 с гайкой - "барашком" через уголок, горизонтальная полка которого прикреплена к шпангоуту шурупами. Кроме того, стойка имеет тросовые растяжки с петлями, надетыми на держатели-шурупы, снабженные толстыми кожаными шайбами, мешающими растяжкам соскакивать. Верхнее крепление тросиков ясно показано на рисунке.

Древко баллера соединено со стойкой руля уголковыми петлями, сквозь отверстия которых продета длинная поворотная ось из проволоки. Каждая петля прикреплена двумя сквозными болтами М6, под головки которых подложены дюралюминиевые пластинки.

Подвижная часть баллера склепана из трех стальных пластин толщиной 1,7 мм каждая. Если же толщина их будет меньше, то между ними необходимо проложить листки фольги, чтобы перо руля свободно вставлялось в предназначенный ему паз.

Перо руля устанавливается дли мелкой и глубокой воды. Второе положение дает ему значительно большую эффективность. Материал пера - дюралюминиевый лист толщиной 1,5 мм.

Парусный катамаран
Рис. 16. Швертовое устройство: 1 - балка швертовая; 2 - кронштейн швертовый; 3 - стабилизатор растяжек шверта; 4 - шверт; 5 - растяжка (трос диаметорм 2, 2 шт.); 6 - кольцо стопорное (2 шт.); 7 - обжимка (медь, труба 5x4, 8 шт.).

ШВЕРТОВОЕ УСТРОЙСТВО (рис.16) состоит из шести основных узлов: балки, кронштейна, стабилизатора растяжек шверта, самого шверта и двух растяжек. Последние изготовьте из отрезков стального троса диаметром 2 мм, кусочков медной трубки (обжимок) и стопорных колец.

Парусный катамаран
Рис. 17. Швертовая балка: 1 - балка (дюралюминий, уголок 35x35x3,5); 2 -фиксатор (дюралюминий, уголок 30x30x3, 2шт); 3 - заклепка (диаметорм 3, 4 шт.).

ШВЕРТОВАЯ БАЛКА (рис.17) опирается на внутренние стрингеры и крепится к ним третьим рядом (считая от носа катамарана) болтов М8 соединительных уголков. Изготовьте ее из дюралюминиевых уголков 30x30 и 35x35 мм. Особо постарайтесь, пропиливая фигурные отверстия для шипов подвески швертового кронштейна: они должны быть точными.

Парусный катамаран
Рис. 18. Швертовый кронштейн: 1 - кронштейн (дюралюминий, тавр); 2 - шайбы-проставки (дюралюминий, лист s5); 3 - ось поворота шверта (болт М6); 4 - щеки шарнира (дюралюминий, лист s5); 5 - вставка (дюралюминий, полоса s10); 6 - фиксатор (болт М6); 7 - консоль шверта; 8 - упор (сталь, штифт диаметорм 6).

ШВЕРТОВЫЙ КРОНШТЕЙН (рис.18) может быть цельным, вырезанным из дюралюминиевого тавра подходящих размеров, или составным, склепанным из нескольких более простых профилей. Здесь это не принципиально. Главное, чтобы шипы швертового кронштейна плотно входили в отведенные им отверстия швертовой балки, а радиусный крюк надежно удерживал кронштейн на балке.

Парусный катамаран
Рис. 19. Стабилизатор растяжек шверта: 1 - балка (дюралюминий, уголок 50x30x5); 2 - гребенка (алюминий, уголок 60x30x5, 2 шт.); 3 - ограничитель (дюралюминий, труба 16x9, 2 шт.); 4 - заклепка (диаметорм 5, 8 шт.).

СТАБИЛИЗАТОР растяжек (рис.19) - необходимейшая часть швертового устройства. Он обеспечивает одинаковое натяжение тросиков при любом положении шверта. Тогда шверт эффективно противостоит поперечным (боковым) силам, старающимся опрокинуть катамаран на борт. В опущенном состоянии шверта трубки стабилизатора держат тросики натянутыми, препятствуя смещению шверта назад при увеличении скорости (вперед его не пускает упор) и тем самым - изменению положения центра бокового сопротивления катамарана.

Конструкция стабилизатора проста и в особых комментариях не нуждается.

Парусный катамаран
Рис 20. Шверт: 1 - обтекатель верхний (пенопласт); 2 - консоль (дюралюминий, труба 30x26,4); 3 - обшивка (дюралюминий, лист s2); 4 - обтекатель нижний (пенопласт); 5 - вставка (дюралюминий, пластина s5); 6 - заклепка длинная (диаметорм 3); 7 - заклепка короткая (диаметорм 3); 8 - втулка-пистон для такелажной скобы подъема шверта (сталь, труба 8x5).

ШВЕРТ (рис.20). Для его обшивки наиболее подходит дюралюминиевый лист толщиной 2 мм. Из такого листа шверт получится тяжеловатым, зато не доставит беспокойства во время путешествий.

Рассчитайте размеры листа с учетом профиля и наклонного положения шверта. В месте сгиба листа выберите канавку круглым напильником диаметром 5 мм без ручки. Не делайте канавку слишком глубокой, иначе передняя кромка шверта получится острой, что нежелательно по законам аэродинамики; к тому же возможно образование трещины. Не делайте канавку и слишком мелкой, иначе вы не справитесь с формой профиля, а повторить сгиб на этом месте будет уже невозможно - лист неизбежно треснет.

Склепайте "хвост" шверта. Закрепите шверт в струбцине с фанерными подкладками и вставьте консоль - дюралюминиевую трубу диаметром 30 мм (отрезок легкоатлетического шеста для прыжков). Она может не доходить до низа шверта. Соедините консоль и обшивку заклепками. Сделать это можно с применением или длинных сквозных, или ко-

ротких заклепок. При коротких заклепках вставьте их изнутри консоли сначала в отверстия одного будущего клепаного шва, затем введите в консоль оправку - стальную водопроводную трубу подходящего диаметра (она должна войти в консоль плотно!) и расклепайте выступающие концы заклепок. Выньте трубу и повторите эти операции на другой стороне шверта.

Профилированные обтекатели необходимы для того, чтобы шверт и в мелководной, и в глубоководной постановке омывался оптимально. Вырежьте обтекатели из пенопласта, оберните несколькими слоями марли, пропитанной эпоксидной смолой, и вклейте в шверт. Обратите внимание: между передней кромкой и нижним обтекателем имеется небольшое дренажное отверстие, через которое из шверта сливается попавшая внутрь вода, поскольку шверт для простоты конструкции негерметичен.

Со швертовым кронштейном шверт соединен шарнирно с помощью нескольких промежуточных деталей, конструкция которых хорошо просматривается на рисунке 18, поэтому подробно останавливаться на них не буду.

Парусный катамаран
Рис 21. Средства крепления оси, гика-шкота и шверта: 1 - шпангоут третий (середина, вид в нос); 2 - стопор гика-шкота (2 шт.); 3 - дужка стопора; 4 - гика-шкот (шнур диаметром 6); 5 - утка грот-фала; 6 - шнур подъема шверта; 7 - кронштейн крепления шкота (дюралюминий, уголок 30x30); 8 - скоба такелажная (тип 5) шверта; 9 - шверт в поднятом положении; 10 - штырь (пруток диаметром 5); 11 - шнур страховочный

О том, как шверт фиксируется в опущенном состоянии, показано выше. В поднятом же состоянии шверт удерживается деревянным штырем, вставляемым в отверстие специального уголкового кронштейна, прикрепленного к кормовой грани третьего шпангоута (рис.21). Рядом с этим кронштейном расположены также шарнирные стопоры гика-шкота и утка грот-фала.

Парусный катамаран
Рис. 22. Съемное шасси: 1 - вал колесный (сталь, пруток диаметром 14, L530); 2,6 - винты М6 (4 шт.); 3 - кожух вала (дюралюминий, П-профиль 20x20x3, L380); 4 - кронштейн (дюралюминий, уголок 40x40x3, 2 шт.); 5 - платформа (дюралюминий, лист 310x70, s2); 7 - ремень (брезент, лента 45x3, L850, 2 шт.); 8 - накладка (дюралюминий, пластина 30x20, s1,5, 2 шт.); 9 - заклепки (диаметром 4, 18 шт.); 10 - болт М8 крепления рундука (2 шт.); 11 - шайба (диаметром 80, s2, 2 шт.); 12 - колесо (диаметром 220, 2 шт.)

СЪЁМНОЕ ШАССИ (рис.22) - весьма полезная приставка к большому (кормовому) рундуку. Она позволяет одному человеку легко перевозить на нем катамаран в разобранном виде. Конструкция шасси изображена здесь без подробностей, поскольку возможны и более простые ее варианты. Колеса диаметром 220 мм с шинами шириной 50 мм - от грузовой тележки. Конечно, такие колеса тяжеловаты, но они надежнее легких "дутиков", которые могут подвести в самый неподходящий момент.

Шасси представляет собой вал, к которому привинчены кожух (П-образный профиль), придающий довольно длинному валу жесткость, и платформа (прямоугольник листового металла). К последней приклепаны уголковые кронштейны и ремни. В таком виде шасси двумя сквозными болтами М8 на гайках-"барашках" крепится ко дну большого (кормового) рундука.

Парусный катамаран
Рис. 23. Поворотная ось: 1 - рундук кормовой (без крышки); 2 - накладка вертикальная (сталь, пластина 225x50, s4); 3 - кронштейн верхний (дюралюминий, уголок 60x30x4); 4 - шуруп (диаметорм 4, 4 шт.); 5 - ось поворотная (дюралюминий, труба 14x8); 6 - шплинт; 7 - кронштейн нижний (дюралюминий, уголок 30x30x4); 8 - обойма (дюралюминий, труба 16x20); 9 - "подшипник" (намотка толстой ниткой, приклеенной эпоксидной смолой и смазанной солидолом); 10 - накладка нижняя (сталь, пластина 120x50, s4); 11 - амортизатор (кожа, шайба диаметорм 30x14, s5); 12 - заклепка диаметорм 4 с цилиндрической головкой (2 шт.); 13 - заклепка диаметорм 4 с потайной головкой (2 шт.). Колесо, крепящееся к нижнему концу поворотной условно не показано

Кроме того, на этом рундуке спереди имеется несъемное поворотное устройство с колесом меньшего диаметра. Сегодня раздобыть качественное поворотное устройство трудно. Те, что продаются, имеют красивый вид, но сделаны из мягкого металла и не рассчитаны на большую нагрузку. Поэтому предлагаю схематичный рисунок такого устройства и его крепления к рундуку (рис.23).

Но прежде чем ставить поворотное устройство на отведенное ему место, дно и переднюю стенку рундука укрепите стальными накладками толщиной 4 мм.

В заключение несколько рекомендаций.

Хорошо, если вы сможете разделить строительство катамарана на три этапа. Результаты каждого из них принесут вам радость.

Первый этап - изготовление рамы, палубы, поплавков, рундуков-сидений и весел. В итоге у вас - четырехместная разборная гребная лодка!

Второй этап - присоединение рулевого устройства и легкой мачты с брифоком - прямоугольным парусом. Теперь вы - турист на любой речке!

И третий этап, самый ответственный и трудный - изготовление профилированного дюралевого шверта, высокой прочной мачты, шитье аэродинамичного паруса. С этого момента вы - полноправный яхтсмен на большой реке, широком водохранилище!

Для сбора в дорогу составьте список всех частей катамарана, сгруппированных по транспортируемым местам. Если его не будет, рискуете вернуться не покатавшись. Особенно внимательно отнеситесь к мелочам. Распределите болты и штыри в комплектах по отдельным пакетам и сложите все это в мешочек.

Большие части - балки и стрингеры - связывайте по четыре, заворачивайте в брезентовую палубу и застегивайте двумя ремнями с бамбуковой ручкой. Туда же убирайте и швертовую балку в "чулке". Металлические уголки - в чехольчики. Части мачты и кормовые подрундучники укладывайте металлическими концами в одну сторону, застегивайте тремя ремнями с подложенными под них фанерками, чтобы ничего не болталось, и складывайте в узкий чехол металлом вперед. Туда же помещайте весла и ручки весел, вставленные одна в другую. Все остальное пакуйте по своему усмотрению, только инструмент, медицинская аптечка, запасные части, нож и деньги должны быть всегда под рукой.

В большой (кормовой) рундук вставьте малый (носовой), в него сложите туристское снаряжение. Катамаран в разобранном виде укладывайте на рундук. Все грузовые "места" должны быть в определенном порядке, покрытые чехлами, стянутые ремешками с бамбуковыми ручками и крепко пристегнутые опоясывающими ремнями. Сверху привязывайте шверт в чехле с тросиками, вдетыми в брезентовые "брючки", чехол с соединительными уголками и стабилизатором растяжек и всю остальную мелочь. Венчайте поклажу рюкзаком, зачем тащить его на себе? Ничего не забыли? Поехали!

Прибыв на место, сборку катамарана начинайте с рамы, вставив балки в карманы палубы. Гайки-"барашки" завинчивайте не очень туго - щадите дерево.

Не забывайте, что чрезмерно надутые поплавки хуже амортизируют на волне по борту, не повышают грузоподъемность и могут лопнуть, когда солнышко "пожелает" увеличить их объем.

Поначалу сборка и разборка катамарана будут занимать у вас уйму времени. Не отчаивайтесь! Я один теперь справляюсь с этой работой за три часа.

Отправляясь в путешествие, помните, что человек на воде слабее кошки - и за удовольствие должен платить строжайшим соблюдением правил безопасности на воде. Катамаран - крепкое и надежное плавсредство, но только тогда, когда он правильно собран. Катамаран с поплавком, не привязанным к внутреннему стрингеру, стряхивает незадачливую команду на воду, а с поплавком, не прикрепленным к борту, может сделать оверкиль и накрыть ее всей своей массой. Поэтому для детей и не умеющих плавать взрослых обязательны спасательные жилеты, лучше надувные двухсекционные. Также необходим на борту и спасательный круг.

Чтобы грамотно управляться с парусом, ознакомьтесь с соответствующей литературой и приобретите практические навыки. Погодные условий на воде меняются довольно часто и резко, причем в течение короткого времени. Помните, что при усилении скорости ветра, например, в три раза аэродинамическая сила паруса увеличивается в девять раз! А пока этих навыков нет, научитесь, в случае чего, быстро опускать парус и переходить на весла, они мощные - их рычаг близок к рычагу весла гоночной лодки.

За последние годы дисциплина на воде значительно ужесточилась, и от каждого участника водного движения требуется грамотное поведение. Поэтому никогда не "перебегайте" дорогу перед крупными судами. Пассажирский пароход идет гораздо быстрее, чем вам кажется, а вы, наоборот, значительно медленнее, чем предполагаете. Кстати, для выхода на большую судоходную реку необходимо пройти техосмотр и получить судовой билет.

И последнее. Для того чтобы полюбить водный туризм, нужен определенный склад характера. Не всегда все бывает хорошо: то ошибешься в прогнозе погоды, то не рассчитаешь быстроту течения или силу и направление ветра. К тому же на картах зачастую встречаются грубые ошибки в километраже, не обозначены плотины и шлюзы. В связи с этим многие предпочтут неизведанному маршруту спокойную прогулку по парку, а вечером теплую ванну, но они никогда не испытают тех переживаний, которые приходятся на долю туриста-водника.

Когда вокруг тихо и катамаран бесшумно скользит по водной глади, душа наполняется удивительными чувствами. Теми, которые побуждают итальянских гандольеров петь, а Шуберта подвигли на создание баркаролы - одной из вершин всемирного музыкального искусства.

Но вот ветер резко усиливается - и на почерневшей воде появляются пенные "барашки". Катамаран, тем не менее, продолжает свой уверенный бег по волнам. Вы чувствуете эту уверенность, она передается вам, разжигая азарт борьбы и радость победы над стихией.

Автор: Д.Вахламов

 Рекомендуем интересные статьи раздела Личный транспорт: наземный, водный, воздушный:

▪ Снегокат

▪ Швертбот

▪ Ремни-грунтозацепы

Смотрите другие статьи раздела Личный транспорт: наземный, водный, воздушный.

Читайте и пишите полезные комментарии к этой статье.

<< Назад

Последние новости науки и техники, новинки электроники:

Впервые преоодолена передача ВИЧ от матери к ребенку 02.01.2026

Проблема вертикальной передачи ВИЧ - от матери к ребенку - остается одной из ключевых задач глобальной медицины. Недавний отчет Всемирной организации здравоохранения (ВОЗ) демонстрирует историческое достижение: Бразилия впервые в своей истории полностью преодолела этот путь передачи вируса. Страна стала 19-й в мире и первой с населением более 100 миллионов человек, которая достигла такого результата. Достижения Бразилии основаны на комплексных медицинских программах, обеспечивающих своевременный доступ к диагностике и терапии для всех слоев населения. ВОЗ официально подтвердило, что уровень передачи ВИЧ от матери к ребенку снизился до менее двух процентов. Более 95% беременных женщин в стране получают регулярный скрининг на ВИЧ и необходимое лечение в рамках стандартного ведения беременности. Изначально программа тестировалась в крупных муниципалитетах и штатах с населением более 100 тысяч человек, а затем была масштабирована на всю страну. Такой подход позволил унифицировать ста ...>>

Нанослой германия увеличивает эффективность солнечных батарей на треть 02.01.2026

Разработка высокоэффективных солнечных батарей остается одной из ключевых задач современной энергетики. Недавнее исследование южнокорейских ученых позволило повысить производительность тонкопленочных солнечных элементов почти на 30%, что открывает новые перспективы для возобновляемых источников энергии, гибкой электроники и сенсорных устройств. Команда исследователей сосредоточилась на элементах на основе моносульфида олова (SnS) - нетоксичного и доступного материала, который идеально подходит для гибких солнечных панелей. До настоящего времени эффективность SnS-устройств оставалась низкой из-за проблем на границе контакта с металлическим электродом. В этой области возникали структурные дефекты, диффузия элементов и электрические потери, что существенно ограничивало возможности таких батарей. "Этот интерфейс был главным барьером для достижения высокой производительности", - отмечает профессор Джейонг Хо из Национального университета Чоннам. Для решения этих проблем ученые предлож ...>>

Электростатическое решение для борьбы с льдом и инеем 01.01.2026

Борьба с льдом и инеем на транспортных средствах и критически важных поверхностях зимой остается сложной и затратной задачей. Ученые из Virginia Tech разработали инновационную технологию, способную разрушать лед и иней без использования тепла или химических реагентов, что открывает новые возможности для безопасной и экологичной зимней эксплуатации транспорта. Исследователи обнаружили, что лед и иней образуют кристаллическую решетку с так называемыми ионными дефектами - заряженными участками, способными перемещаться под воздействием электрического поля. Эти дефекты являются ключом к управлению прочностью льда и его удалением с поверхностей. Когда на замерзшую поверхность подается положительный электрический заряд, отрицательные ионные дефекты притягиваются к источнику поля. Это вызывает разрушение кристаллической решетки льда, в результате чего часть льда буквально "отскакивает" от поверхности. Такой эффект позволяет удалять лед без применения внешнего тепла или химических средств ...>>

Случайная новость из Архива

Тихая минитурбина для городских домов 03.11.2024

Возобновляемая энергия становится все более популярной, и новые технологии позволяют адаптировать ее под условия городских районов. Одним из таких решений стала компактная и почти бесшумная ветряная турбина Liam F1 Mini Urban, представленная нидерландской компанией Archimedes. Эта инновационная турбина открывает новые возможности для ветроэнергетики, делая ее доступной для использования в городской среде, где плотная застройка и шумовые ограничения часто мешали применению традиционных ветряных генераторов.

Liam F1 Mini Urban заняла уникальную нишу на рынке возобновляемой энергии благодаря своим особенностям. В отличие от крупных турбин, которые трудно устанавливать в густонаселенных районах, эта модель компактна, эффективна и практически не издает шума. Она может производить до 1500 кВтч электроэнергии в год, что позволяет обеспечить значительную часть потребностей небольшого городского дома. Это делает турбину экономически выгодной альтернативой для частных домовладельцев, стремящихся к автономии в вопросах энергопотребления.

Главное достоинство Liam F1 Mini Urban - ее бесшумность, что особенно важно для установки в городских и пригородных районах. Традиционные турбины часто сталкиваются с жалобами на шум, особенно в ночное время, но Archimedes решила эту проблему с помощью уникальной конической конструкции. С диаметром всего в 0,75 метра, турбина легко размещается на крышах или других городских конструкциях, не нарушая эстетики и пространства.

Еще одна инновационная особенность Liam F1 Mini Urban - ее спиралевидная форма, благодаря которой турбина автоматически подстраивается под направление ветра. Как флюгер, она ловит потоки ветра под оптимальным углом, обеспечивая максимальную эффективность и выработку электроэнергии. Это позволяет турбине функционировать даже при низкой скорости ветра в 5 м/с, что особенно актуально для городских условий, где ветровая нагрузка часто бывает нестабильной.

Кроме того, Liam F1 Mini Urban отличается простотой в обслуживании. Она не требует сложного ухода и может работать стабильно в течение длительного времени. По желанию, владельцы могут объединить ее с солнечными панелями, создавая комбинированную энергосистему, которая будет использовать как ветер, так и солнце для генерации электроэнергии. Это решение позволяет максимально эффективно использовать ресурсы и снижает зависимость от традиционных источников энергии.

Ветряная турбина Liam F1 Mini Urban является значимым шагом вперед в развитии городской ветроэнергетики. Она не только отвечает требованиям экологичности, но и предлагает практичные решения для городских жителей, стремящихся снизить свои расходы на электроэнергию и перейти на возобновляемые источники энергии без ущерба для комфорта.

Другие интересные новости:

▪ Мультимедийный центр InControl автомобилей Jaguar

▪ Драйвер жесткого диска диаметром 0,85 дюйма с емкостью до 4 Гбайт

▪ Водная замена литий-ионным аккумуляторам

▪ Новый пассажирский Ford Tourneo Custom

▪ Темную материю вокруг Солнца не нашли

Лента новостей науки и техники, новинок электроники

 

Интересные материалы Бесплатной технической библиотеки:

▪ раздел сайта Шпионские штучки. Подборка статей

▪ статья С Новым годом, дорогие товарищи! Крылатое выражение

▪ статья Чьи головы откусывали гики в 19 веке? Подробный ответ

▪ статья Машинист подъемника мачтового, стоечного или шахтного. Типовая инструкция по охране труда

▪ статья Устройство ветроэлектрической установки. Энциклопедия радиоэлектроники и электротехники

▪ статья Входной модуль микшерного пульта. Энциклопедия радиоэлектроники и электротехники

Оставьте свой комментарий к этой статье:

Имя:


E-mail (не обязательно):


Комментарий:





Главная страница | Библиотека | Статьи | Карта сайта | Отзывы о сайте

www.diagram.com.ua

www.diagram.com.ua
2000-2025