Бесплатная техническая библиотека
Микродвигатель на сжиженном газе. Советы моделисту

Справочник / Аппаратура радиоуправления
Комментарии к статье
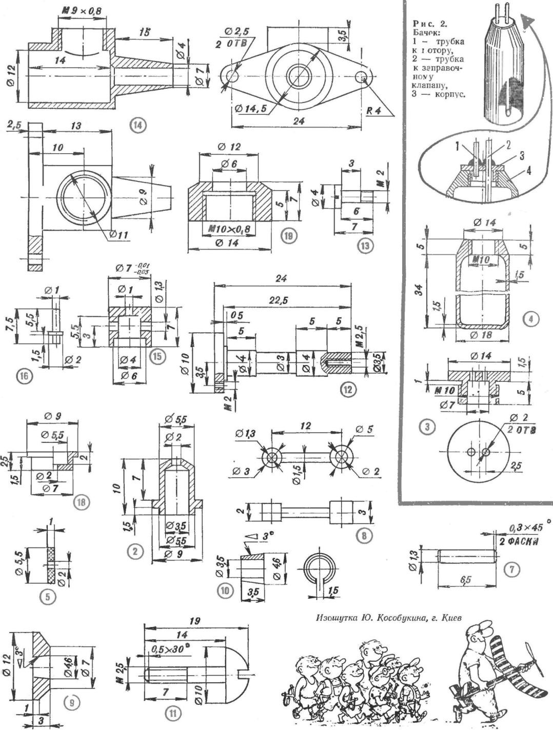
Авиамоделисты пока еще не обратили внимания на весьма перспективный двигатель, работающий на сжиженном газе CO2. А ведь простота изготовления и эксплуатации делают его куда более доступным, чем компрессионные и калильные двигатели. Кроме того, он не загрязняет воздух и бесшумен в работе. С этим двигателем (рис. 1) могут работать различные авиамодели весом до 100 г. От одного баллончика для сифонов бачок (рис. 2) можно заправить два раза.
Рабочий объем двигателя 0,27 см3. С воздушным винтом Ø 180 мм он развивает 1900-2100 об/мин. Продолжительность полета 45-50 с.
Остановимся подробно на технологии изготовления наиболее сложных и ответственных деталей двигателя.
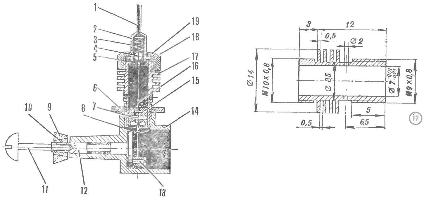
Картер выточите из дюралюминия Д16Т на токарном станке с последующей слесарной обработкой наружных поверхностей. Резьбу М9Х0,8 нарежьте на станке. Отверстие под вал просверлите и обработайте разверткой Ø 4 мм.
Цилиндр проще сделать из круглого прутка нержавеющей стали Ø 15 мм на токарном станке. Резьбу нарежьте на токарно-винторезном станке с одной установки.
Внутренний диаметр цилиндра после расточки с помощью чугунного притира доведите до размера, указанного на чертеже.
Коленчатый вал изготовьте на токарно-винторезном станке из стали 45. С одной установки, просверлит отверстие под резьбу №2,5 и нарежьте ее. Шейки вала доведите до Ø 4 мм с помощью наждачной бумаги № 00 и последующей притирки пастой ГОИ по месту в картере.
Рис. 1. Двигатель на СО2 (нажмите для увеличения): 1 - трубка, 2 - корпус пружины, 3 - пружина, 4 - шарик Ø 4, 5 - прокладка, 6 - гайка-фиксатор, 7 - палец поршня, 8 - шатун, 9 - упорная шайба, 10 - конус, 11 - кок-болт, 12 - коленчатый вал, 13 - палец кривошипа, 14 - картер, 15 - поршень, 16 - шток, 17 - цилиндр, 18 - крышка цилиндра, 19 - головка цилиндра
(нажмите для увеличения)
(нажмите для увеличения)
Затем разметьте, просверлите на сверлильном станке и нарежьте резьбу М2 отверстие для пальца кривошипа. Сам палец выточите из стали 45 или серебрянки. Его поверхность отшлифуйте наждачной бумагой, затем нарежьте резьбу М2.
Головки цилиндра изготовьте из дюралюминия Д16Т. Внутреннюю резьбу нарежьте на токарно-винторезном станке.
Шатун выточите на токарном станке из дюралюминия Д16Т. Головки шатуна сначала изготовьте шаровидными, затем напильником сточите часть сферы. Накерните центры отверстий под поршневой палец и кривошип и просверлите их на сверлильном станке.
Пружина, используемая в головке двигателя, взята из аэрозольного баллончика небольшой емкости. Для тех, кому не удается ее достать, сообщаем параметры: проволока Ø 0,8 мм, диаметр пружины 4 мм, длина 7-8 мм.
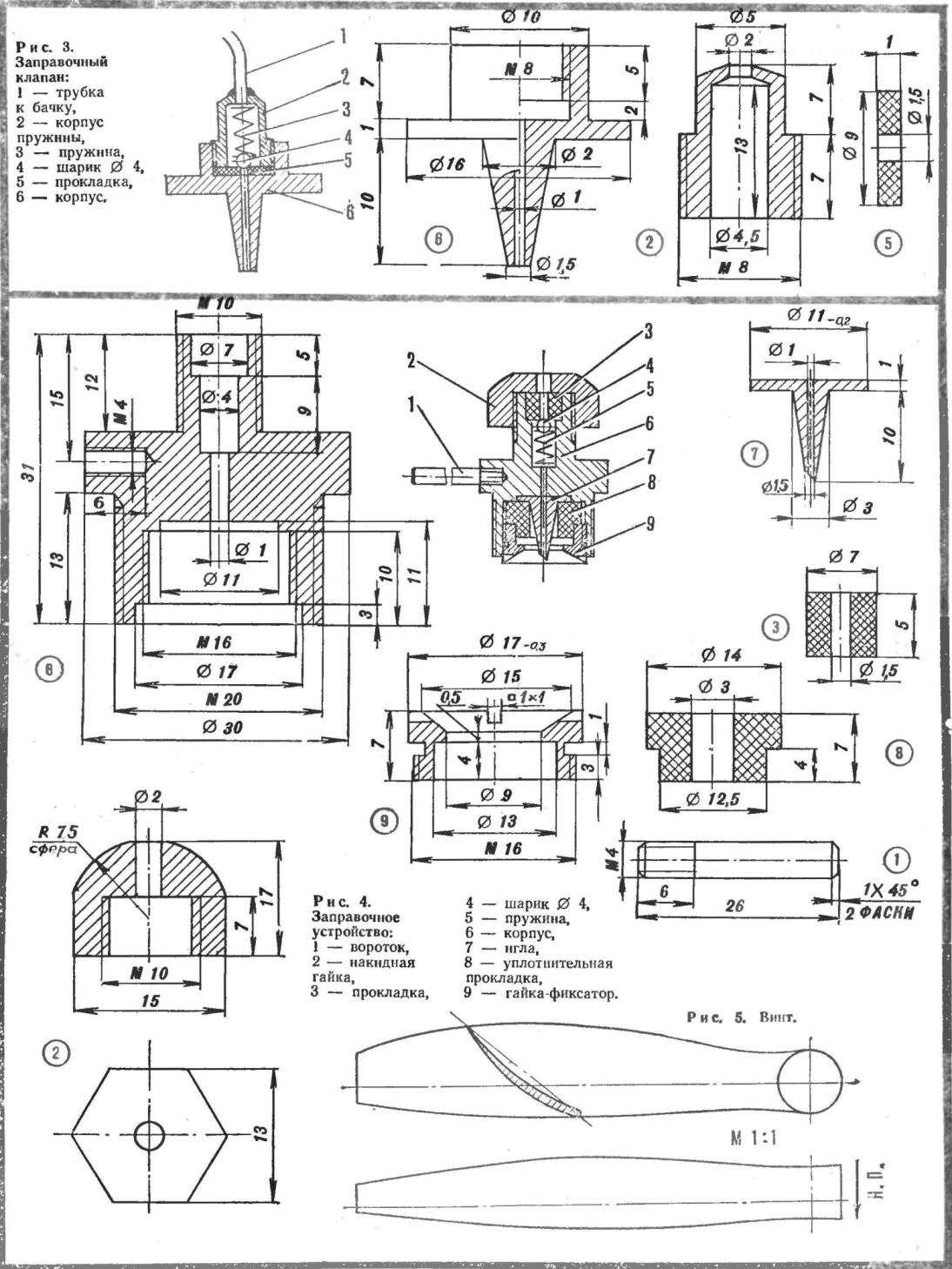
Пружина для заправочного клапана (рис. 3) изготовлена из проволоки ОВС Ø 0,4 мм. Она имеет наружный Ø 4 мм и длину 10 мм.
В заправочном устройстве пружина такая же, как в цилиндре двигателя. Для газовых магистралей необходима трубка из нержавеющей стали Ø 1,5-2 мм.
Порядок сборки. В отверстие днища поршня легким ударом молотка запрессуйте шток. Вставьте поршневой палец и шатун. С боков отверстия сделайте засечки для предотвращения выхода пальца. Затем, слегка смазав шейки вала, вставьте его в картер. Вал должен легко вращаться. Через верхнюю горловину картера опустите шатун. Совместите отверстие головки с отверстием на валу, вставьте палец кривошипа и закрутите его до упора. Проследите, чтобы шатун имел свободу перемещения на 0,4 мм по пальцу.
Затем к корпусу пружины припаяйте газопровод и соберите клапанный узел согласно сборочному чертежу. Соберите также остальные узлы. Над головкой двигателя загните газопровод в виде спирали Ø 25 мм. Это необходимо для полного испарения жидкого газа в газопроводе. Опуская и поднимая цилиндр, добейтесь нужной фазы впуска газа в надпоршневое пространство от этого зависит четкость работы двигателя.
Баллончик вставляют в заправочное устройство (рис. 4) с помощью зажимной гильзы от сифона.
Воздушный винт (рис. 5) из липы.
Автор: В.Локтионов
Рекомендуем интересные статьи раздела Моделирование:
▪ Кордовая пилотажная модель самолета
▪ Постройка планера
▪ Изготовление вантов
Смотрите другие статьи раздела Моделирование.
Читайте и пишите полезные комментарии к этой статье.
<< Назад
Последние новости науки и техники, новинки электроники:
Польза белкового завтрака
14.01.2026
Правильное питание по утрам играет ключевую роль в поддержании здоровья и контроле веса. Многочисленные исследования подтверждают, что состав завтрака может влиять на аппетит в течение всего дня и качество употребляемой пищи. Австралийские ученые провели масштабный эксперимент, который показал, что употребление белковой пищи с утра помогает дольше чувствовать сытость и предотвращает переедание.
В исследовании участвовали более 9 тысяч человек среднего возраста 46 лет. В период с 2011 по 2012 год специалисты анализировали рационы респондентов, оценивая долю основных макронутриентов. В среднем участники потребляли 43% углеводов, 31% жиров, 18% белков, 2% клетчатки и 4% алкоголя. Такой рацион позволил ученым проследить взаимосвязь между утренним приемом пищи и пищевым поведением в течение дня.
Выяснилось, что участники, чей завтрак содержал недостаточное количество белка, ощущали повышенный аппетит в течение дня. Они ели больше, чем необходимо, и часто выбирали продукты с высоким со ...>>
Технология SmartPower HDR
14.01.2026
Ноутбуки стремительно развиваются в плане графики и мультимедийных возможностей, но яркие дисплеи с высоким динамическим диапазоном (HDR) часто становятся серьезной нагрузкой для аккумуляторов. Длительная работа с видео высокого качества или играми в HDR приводит к быстрой разрядке батареи, что ограничивает мобильность пользователей и снижает комфорт работы. Решить эту проблему призвана новая технология SmartPower HDR, разработанная совместно компаниями Samsung Display и Intel.
Суть технологии заключается в динамическом управлении напряжением OLED-панелей. Чипсет ноутбука в реальном времени анализирует пиковую яркость каждого кадра и передает эти данные контроллеру дисплея, который оптимизирует подачу напряжения в зависимости от количества активных пикселей. В отличие от традиционных режимов HDR, где яркость часто фиксируется на максимальном уровне, SmartPower HDR адаптируется к конкретному контенту, что снижает энергопотребление без потери качества изображения.
Технология позвол ...>>
Недосып существенно сокращает жизнь
13.01.2026
Сон является одной из самых фундаментальных потребностей человека. Он влияет на обмен веществ, работу сердца и мозга, иммунитет и общее самочувствие. Современный ритм жизни часто заставляет людей жертвовать сном ради работы, учебы или развлечений, но ученые предупреждают: регулярный недосып может иметь далеко идущие последствия для здоровья и долголетия.
Исследователи из Орегонского университета здравоохранения и науки пришли к выводу, что сон менее семи часов в сутки связан с сокращением продолжительности жизни. По данным специалистов, хроническая нехватка сна не только вызывает усталость и снижение работоспособности, но и постепенно сказывается на здоровье органов и систем, увеличивая риски развития различных заболеваний.
Для анализа ученые использовали обширную национальную базу данных США, сопоставляя показатели ожидаемой продолжительности жизни на уровне штатов с результатами опросов Центров контроля и профилактики заболеваний за период с 2019 по 2025 годы. Они учитывали мно ...>>
Случайная новость из Архива Бананы под угрозой исчезновения
03.07.2025
Банан давно стал неотъемлемой частью повседневного рациона миллионов людей. Этот плод легко усваивается, питателен и приносит пользу сердцу, пищеварению и даже настроению. Но за этим привычным изобилием скрывается тревожная реальность: ученые предупреждают, что уже к 2080-м годам большая часть банановых плантаций в Латинской Америке и Карибском бассейне может исчезнуть с лица земли.
Ситуация, сложившаяся вокруг банановых хозяйств, вызвана в первую очередь климатическим кризисом. Повышение температур, изменение режима осадков и участившиеся экстремальные погодные явления напрямую влияют на урожайность и здоровье растений. Об этом свидетельствует исследование международной гуманитарной организации Christian Aid, озаглавленное "Going Bananas: How Climate Change Threatens the World's Favourite Fruit".
Фермеры, работающие в тропических зонах, уже сталкиваются с последствиями климатических изменений. Одна из них, 53-летняя Аурелия Поп из Гватемалы, рассказала, что ее плантация стремительно теряет продуктивность. Урожаи, которые раньше кормили ее семью и приносили стабильный доход, теперь становятся все более скудными. Это не просто экономическая проблема - это удар по образу жизни целых общин.
На данный момент более 80% всего мирового экспорта бананов приходится именно на страны Латинской Америки и Карибского региона. Эти поставки играют ключевую роль не только в экономике региона, но и в обеспечении продовольственной безопасности во многих странах. Однако стремительное падение урожайности грозит дестабилизацией глобальных поставок и резким ростом цен.
Проблема усугубляется еще и тем, что бананы - это, по сути, монокультура, выращиваемая на огромных площадях, что делает их особенно уязвимыми к климатическим колебаниям и болезням. В условиях глобального потепления защитить такие культуры становится все сложнее, а внедрение устойчивых сортов требует времени и значительных вложений.
Наряду с климатом, дополнительные угрозы создают грибковые инфекции, особенно штаммы фузариоза, против которых современные сорта бананов не обладают иммунитетом. Пока внимание мирового сообщества сконцентрировано на более очевидных аспектах климатических изменений, такие сельскохозяйственные катастрофы подкрадываются незаметно - но с не менее разрушительными последствиями.
Если не принять срочные меры по адаптации сельского хозяйства к изменяющемуся климату, мир может столкнуться с дефицитом одного из самых потребляемых фруктов. История банана превращается в символ глобального вызова: сохранить устойчивое сельское хозяйство в условиях растущих климатических рисков. Решение этой проблемы потребует усилий как от научного сообщества, так и от международных политиков, прежде чем исчезновение банановых плантаций станет реальностью.
|
Другие интересные новости:
▪ Высокопрочный цемент на основе дерева
▪ Кино для курящих
▪ Умное мыло заменит стиральную машинку
▪ Сканер-брелок адресов интернет-сайтов
▪ Новый рекорд беспроводной передачи данных
Лента новостей науки и техники, новинок электроники
Интересные материалы Бесплатной технической библиотеки:
▪ раздел сайта Основы безопасной жизнедеятельности (ОБЖД). Подборка статей
▪ статья Справочник кроссвордиста
▪ статья Сколько времени цыпленок может прожить без головы? Подробный ответ
▪ статья Яхта из байдарки. Личный транспорт
▪ статья Два реле времени. Энциклопедия радиоэлектроники и электротехники
▪ статья Электронный трансформатор для питания. Энциклопедия радиоэлектроники и электротехники
Оставьте свой комментарий к этой статье:
Главная страница | Библиотека | Статьи | Карта сайта | Отзывы о сайте

www.diagram.com.ua
2000-2026