Menu Home

Бесплатная техническая библиотека для любителей и профессионалов Бесплатная техническая библиотека


Летающая лодка. Советы моделисту

Моделирование

Справочник / Аппаратура радиоуправления

Комментарии к статье Комментарии к статье

В литературе по авиамоделизму не столь уж много внимания уделяется радиоуправляемым моделям гидросамолетов, хотя, как показывает практика, немало энтузиастов предпочитают их чисто "сухопутным", считая "водоплавающие" более интересными как для изготовления, так и для пилотирования. Многие из них ссылаются также на удобство эксплуатации таких моделей по сравнению с теми, что оснащены колесным шасси - ведь для "сухопутных" далеко не везде можно найти достаточно большую площадку с асфальтовой или бетонной дорожкой для взлета и посадки. В то время как подходящий аквадром - пруд, озеро или реку - отыскать не столь уж сложно. К тому же знатоки утверждают, что взлет и посадка с воды производятся не в пример проще.

Предлагаем вниманию читателей радиоуправляемую модель летающей лодки, рассчитанную на двигатель с рабочим объемом от 2,5 до 4 см3. При этом следует иметь в виду, что на мини-гидроплан, собранный с использованием бальзы, вы сможете установить мотор типа КМД-2,5, ну а более тяжелая модель, сделанная из липы и сосны, потребует более мощного двигателя.

Еще одним препятствием для создания моделей поплавковых гидросамолетов и летающих лодок всегда считалось проектирование взлетно-посадочных устройств, находящихся при взлете и посадке в контакте с водой. Действительно, создать хорошие глиссирующие корпуса поплавков или лодки - проблема непростая: им приходится скользить и по гладкой воде, и при легкой ряби, и при волнении, не зарываясь при этом в воду, не совершая прыжков и сохраняя способность к глиссированию. Однако при этом можно и не "изобретать велосипед" - все эти проблемы давным-давно с успехом решаются судомоделистами, создающими гоночные модели типа F3 или FSR: корпуса этих глиссеров - практически готовые взлетно-посадочные устройства моделей гидросамолетов.

И еще: иные "сухопутчики" утверждают, что модели гидросамолетов могут производить посадку только на воду. Однако многочисленные эксперименты показывают, что и поплавковые самолеты, и летающие лодки вполне благополучно приземляются не только на воду, но и на траву, и на снег, и даже на асфальт.

Аэродинамическая схема модели летающей лодки - высокоплан с высоко расположенным двигателем. Крыло имеет несимметричный двояковыпуклый профиль Р-II-14% с высокими несущими характеристиками, который хорошо работает на больших углах атаки.

Летающая лодка
Геометрическая схема модели летающей лодки (нажмите для увеличения)

Для управления моделью используется два канала: один - по крену, для привода элеронов, и другой - по тангажу, для привода руля высоты. В принципе, можно было бы задействовать и третий канал для привода аэродинамического руля направления, соединив его также с гидродинамическим - при движении летающей лодки по гидроаэродрому это позволит эффективно управлять моделью.

Конструктивно модель гидросамолета состоит из несущей части (она включает несущую балку, крыло, двигатель с воздушным винтом и топливным баком, а также киль и стабилизатор) и взлетно-посадочного устройства - лодки.

Летающая лодка
Модель гидросамолета типа "летающая лодка" с двигателем КМД-2,5 (нажмите для увеличения): 1 - двигатель; 2 - топливный бак; 3 - козырек "пилота"; 4 - головка "пилота"; 5, 9 - стыковочные стержни (бук); 6 - тяги привода элеронов (дюралюминий, вязальная спица диаметром 2,5); 7 - рулевая машинка привода элеронов; 8 - винт-саморез диаметром 3; 10 - несущая балка; 11 - киль (бальза, лист s6); 12 - горизонтальное оперение; 13 - элерон; 14, 21 - винты М3 крепления палубы; 15 - рулевая машинка привода руля высоты; 16 - место расположения аккумуляторов питания радиоаппаратуры; 17- палуба лодки; 18 - лодка; 19 - крыло; 20 - место расположения приемника; 22 - тяга привода руля высоты (дюралюминий, вязальная спица диаметром 2,5)

Несущая балка модели - это композитная конструкция, представляющая собой пенопластовую болванку, усиленную в передней ее части парой бальзовых щечек и оклеенную двумя слоями стеклоткани. В средней ее части, снизу, вырезана прямоугольная ниша для рулевой машинки системы радиоуправления моделью. Снизу же в балке высверлены два цилиндрических отверстия и усилены пластиковыми втулками - в них фиксируются стыковочные штыри, соединяющие несущую балку и лодку. Кстати, неплохие втулки получаются из корпусов фломастеров или шариковых ручек. Замечу также, что вырезать отверстия в пенопласте лучше всего с помощью самодельного сверла из металлической трубки подходящего диаметра - нужно лишь с одной ее стороны с помощью треугольного надфиля нарезать зубья; сверлить отверстия в пенопласте следует через кондуктор из 5-мм фанеры. Готовая балка вышкуривается, подшпаклевывается и окрашивается автоэмалью подходящего цвета.

Летающая лодка
Несущая балка модели (нажмите для увеличения): 1 - пенопластовый сердечник балки, 2, 4 - втулки (пластик); 3 - стеклотекстолит (два слоя стеклоткани и эпоксидное связующее); 5 - усиливающие щечки (бальза)

Лодка модели имеет также композитную конструкцию. Для начала из упаковочного пенопласта в соответствии с теоретическим чертежом корпуса вырезается болванка. Далее она аккуратно разделяется на части таким образом, чтобы можно было вклеить в корпус усилители из 3-мм бальзовых пластин - шпангоуты, транцевую и реданную доски, а также продольные переборки в задней части лодки. Помимо усилителей в корпус следует вклеить липовые бобышки с заклеенными в них гайками с резьбой М3 - они предназначены для винтов крепления палубы. Далее корпус лодки оклеивается двумя слоями стеклоткани, причем палубная часть лодки лишь грунтуется эпоксидкой. После отверждения смолы корпус вышкуривается, грунтуется и на нем закрепляются заранее вырезанные из липы и подогнанные к корпусу продольные реданы и устанавливаются стыковочные буковые штыри, с помощью которых соединяется корпус лодки и несущая балка модели. В завершение корпус окрашивается автоэмалью.

Летающая лодка
Конструкция лодки (нажмите для увеличения): 1, 2 - стыковочные штыри (бук); 3 - усиления бортов (липа, рейка 3x5); 4, 6, 9 - шпангоуты-усилители (бальза, лист s3); 5 - реданная доска (бальза s3); 7 - крышки (бальза, лист s3); 10 - продольные усилители (бальза, лист s3); 11 - транцевая доска (бальза, лист s3); 12 - опорная доска рулевой машинки (фанера s3); 13-17 - бобышки с вклеенными в них гайками М3 (липа)

Летающая лодка
Теоретический чертеж лодки (нажмите для увеличения)

Палуба лодки выклеивается из эпоксидной смолы и трех слоев стеклоткани прямо по готовому корпусу - нужно только обтянуть его так называемой "пищевой пленкой" (в такую обычно упаковывают пищевые продукты). Тончайшая пленка позволит не только защитить корпус лодки при достаточно "грязной" работе по оклейке палубы стеклотканью, но и даст возможность легко отделить выклейку от корпуса. При формовании палубы необходимо делать 5-мм напуск на борта лодки, что повысит герметичность корпуса. После отверждения смолы палуба вышкуривается, грунтуется и окрашивается.

Для уменьшения сопротивления движению лодки по воде ее поверхность после окраски следует тщательно отшлифовать, покрыть еще одним слоем автоэмали и затем отполировать.

Стык палубы с корпусом лодки должен быть по возможности герметичным - чтобы обеспечить это, по линии борта следует нанести буртик из самотвердеющего силиконового герметика, наложить поверх его "пищевую пленку", а затем и закрепить винтами палубу. После отверждения герметика пленка убирается - и между палубой и корпусом лодки появится вполне надежное уплотнение.

Крыло модели - V-образное, классической конструкции, оно собрано с использованием двухполочного лонжерона из сосновых реек сечением 4x12 мм с пенопластовым заполнением межполочного пространства. Нервюры - бальзовые, вырезанные из пластин толщиной 3 мм (при отсутствии бальзы их можно сделать из липы толщиной 2 мм или пенопласта толщиной 5 мм).

Летающая лодка
Крыло модели гидросамолета (нажмите для увеличения): 1-законцовка (мелкопористый пенопласт); 2-передняя кромка (сосна, рейка 6x6); 3, 5, 9-нервюры (бальза s3); 4-лонжерон (сосна, рейка 4x12); 6-бобышка с заклеенной в нее гайкой М3 (липа); 7-моторама (береза, пластина s10); 8-петля элерона; 10-задняя кромка средней части крыла (бальза, пластина s6); 11-концевая нервюра (бальза, лист s3); 12-задняя кромка концевой части крыла (бальза, пластина s4); 13-элерон (бальза, пластина s10); 14-кабанчик элерона; 15-заполнение (мелкопористый пенопласт).

Как уже упоминалось, крыло имеет угол V = 10° - чтобы обеспечить его, каждую из полок лонжерона придется склеить эпоксидной смолой "на ус" из двух реек в простейшем стапеле из пары ровных досок, обеспечивающем выдерживание требуемого угла V.

В центральной части крыла располагается моторама из березовых брусков толщиной 10 мм; между полками лонжерона в этой части крыла вклеивается отрезоклиповой рейки.

Топливный бак обтекаемой формы спаян из белой жести толщиной 0,3 мм.

Элероны - бальзовые, каждый из них подвешивается к крылу на трех петлях (они представляют собой отрезки капроновой ленты), заклеенных в прорезях в элеронах и задних кромках крыла. Кабанчики привода элеронов сделаны из листового дюралюминия толщиной 0,5 мм. Крепление их к элеронам - с помощью скоб из алюминиевой проволоки диаметром 1 мм, заклеенной в отверстиях элеронов. Тяги управления, соединяющие кабанчики и рулевую машинку, - из дюралюминиевых вязальных спиц диаметром 2 мм.

Обшивка крыла - из лавсановой пленки, технология обтяжки моделей с помощью клея "Момент" и небольшого электрического утюга.

Горизонтальное оперение собирается на эпоксидном клее из бальзовых реек толщиной 6 мм. Профиль стабилизатора - плоский, скругленный в передней его части. Обшивка крыла - из лавсановой пленки. Руль высоты цельнобальзовый, на стабилизаторе он закрепляется точно так же, как элероны на крыле - с помощью трех петель из капроновой ленты. Кабанчик руля высоты сделан из отрезка стальной проволоки диаметром 2 мм - с одной стороны на нем нарезается М2, а с другой - загибается колечко с внутренним диаметром 2 мм. Крепление кабанчика на руле высоты производится с помощью двух гаек и двух шайб.

Летающая лодка
Горизонтальное оперение (все деревянные детали вырезаны из бальзовой пластины толщиной 6 мм) (нажмите для увеличения): 1, 4 - петли руля высоты; 2 - центральная перемычка, 3 - руль высоты, 5 - задняя кромка: 6 - концевая перемычка; 7 - передняя кромка: 8 - нервюры

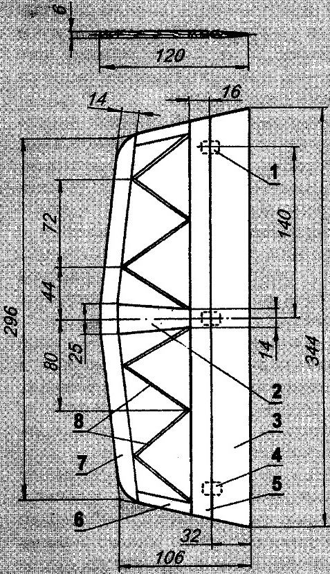
Киль - цельнобальзовый, вырезан из пластины толщиной 6 мм. На несущей балке закрепляется с помощью эпоксидного клея.

При сборке модели следует учесть, что аэродинамический фокус (он находится на расстоянии около 25 процентов хорды крыла от его передней кромки) должен не только совпадать с центром тяжести модели, но и с обрезом переднего редана лодки. Это позволяет модели при взлете устойчиво выходить на глиссирование и двигаться по гидроаэродрому без "клевков" и взмываний.

Контроль положения центра тяжести следует производить в процессе изготовления модели, корректируя его при необходимости облегчением или загрузкой тех или иных элементов модели, а также изменяя расположение приемника и аккумуляторов.

Перед полетами следует убедиться в надежной герметизации модели. Дополнительно рекомендуется защитить от влаги приемник и рулевые машинки с помощью резиновой перчатки или оболочки воздушного шарика - тяги и соединительные провода при этом пропускаются через проколы в резине. Следует также герметизировать выключатель бортового питания - сделать это проще всего с помощью аптечного напальчника, натянув его на наружную часть тумблера. Фиксация приемника и аккумуляторов в отсеках лодки производится с помощью полосы поролона. Кстати, аккумуляторы герметизировать не следует из-за выделения ими газов и тепла.

И еще - для двигателя КМД-2,5 вполне подойдет воздушный винт диаметром 180 мм. Опытные пилоты категорически не советуют использовать на моделях гидросамолетов деревянные пропеллеры - при неудачных посадках, когда воздушный винт попадает в воду, его буквально размалывает в щепки.

Как утверждают почитатели морской авиации, пилотирование модели гидроплана доставляет большое удовольствие "пилоту" - особенно хороши взлеты с водной глади и посадки на нее. "Сухопутчики", правда, говорят, что быть "пилотом" летающей лодки гораздо сложнее, чем классической радиомодели. Однако здесь более ценно мнение приверженцев гидроавиации - они считают, что процесс переучивания не слишком сложен, а навыки взлета и посадки на воду приобретаются буквально за несколько полетов. Тем более что взлетно-посадочная полоса гидроаэродрома, как правило, и гладкая, и широкая, и длинная, причем на пруду или озерке всегда можно выбрать самое благоприятное направление взлета и посадки - навстречу ветру.

Итак, мотор запущен и направление взлета выбрано. Учтите, что при разбеге следует ориентировать модель перпендикулярно волнам - они, как правило, расположены перпендикулярно к направлению ветра. При движении по воде не делайте резких движений рулями - это может привести к опрокидыванию летающей лодки. Правильно сцентрованная модель легко выйдет на редан, далее последует отрыв от водной поверхности, выдерживание и, наконец, взлет!

Автор: И.Сорокин

 Рекомендуем интересные статьи раздела Моделирование:

▪ Строим модели ракет

▪ Бойцовка в дипломате

▪ Изящная и стремительная лодка

Смотрите другие статьи раздела Моделирование.

Читайте и пишите полезные комментарии к этой статье.

<< Назад

Последние новости науки и техники, новинки электроники:

Стерильного нейтрино не существует 15.01.2026

В физике элементарных частиц поиск новых, пока не обнаруженных объектов играет ключевую роль в понимании устройства Вселенной. Иногда такие поиски приводят к громким открытиям, а иногда - к не менее важным отрицательным результатам, которые позволяют отбросить неверные направления. Именно к таким случаям относится недавний вывод ученых о судьбе стерильного нейтрино - одной из самых интригующих гипотетических частиц последних десятилетий. Исследователи из американской лаборатории Fermilab официально сообщили, что им не удалось найти доказательства существования стерильного нейтрино. К такому выводу пришла команда эксперимента MicroBooNE после многолетнего анализа столкновений нейтрино, которые ранее рассматривались как возможный намек на существование четвертого типа этих частиц. Предполагалось, что стерильное нейтрино взаимодействует с материей исключительно через гравитацию, что делало его крайне трудным объектом для обнаружения. В рамках современной физики нейтрино известны в т ...>>

Беспроводные наушники и колонки Fender 15.01.2026

Музыкальная индустрия постепенно адаптируется к цифровым технологиям, и известный производитель музыкальных инструментов Fender расширяет свое присутствие за пределы гитар и усилителей, представляя современные решения для прослушивания музыки. Новые беспроводные наушники и Bluetooth-колонки Fender объединяют богатый звук, модульность и удобство использования как для дома, так и для профессиональной работы. Флагманской новинкой стали наушники Fender Mix, отличающиеся модульной конструкцией. Динамики подключаются к оголовью через порт USB Type-C и могут быть сняты вместе с амбушюрами, что облегчает уход и транспортировку. Один из динамиков оснащен встроенным адаптером USB Type-C для подключения к источнику звука без потерь, поддерживая кодеки LDHC и Fire, а также функцию Auracast. На другом динамике размещен съемный аккумулятор, который обеспечивает до 100 часов работы без активного шумоподавления; при включении ANC время работы сокращается до 52 часов. Наушники доступны по цене $299 ...>>

Польза белкового завтрака 14.01.2026

Правильное питание по утрам играет ключевую роль в поддержании здоровья и контроле веса. Многочисленные исследования подтверждают, что состав завтрака может влиять на аппетит в течение всего дня и качество употребляемой пищи. Австралийские ученые провели масштабный эксперимент, который показал, что употребление белковой пищи с утра помогает дольше чувствовать сытость и предотвращает переедание. В исследовании участвовали более 9 тысяч человек среднего возраста 46 лет. В период с 2011 по 2012 год специалисты анализировали рационы респондентов, оценивая долю основных макронутриентов. В среднем участники потребляли 43% углеводов, 31% жиров, 18% белков, 2% клетчатки и 4% алкоголя. Такой рацион позволил ученым проследить взаимосвязь между утренним приемом пищи и пищевым поведением в течение дня. Выяснилось, что участники, чей завтрак содержал недостаточное количество белка, ощущали повышенный аппетит в течение дня. Они ели больше, чем необходимо, и часто выбирали продукты с высоким со ...>>

Случайная новость из Архива

Осмотическая электростанция 880 МВтч 27.09.2025

В поисках новых источников чистой энергии человечество все чаще обращается к естественным физическим процессам. Одним из них является осмос - движение молекул воды через полупроницаемую мембрану. На его основе в японском городе Фукуока запустили электростанцию, которая одновременно опресняет морскую воду и вырабатывает электричество.

Принцип работы подобных станций строится на разнице концентраций. Когда соленая и пресная вода разделены мембраной, молекулы воды переходят из менее концентрированного раствора в более концентрированный, стремясь уравнять состав. В установке во Фукуоке пресная вода или очищенные сточные воды располагаются по одну сторону мембраны, а морская - по другую. По мере увеличения давления на соленой стороне часть жидкости проходит через турбину, соединенную с генератором, что и позволяет получать энергию.

Главное преимущество такого метода заключается в том, что процесс не требует сжигания ископаемого топлива и не производит вредных выбросов в атмосферу. Более того, в отличие от солнечных батарей или ветряков, он не зависит от погоды, а значит, может обеспечивать стабильное электроснабжение.

История технологии началась еще в Норвегии, где компания Statkraft построила первый прототип мощностью всего 4 киловатта. Он доказал принципиальную возможность генерации энергии при помощи осмоса, но из-за дороговизны технология тогда не нашла коммерческого применения.

Ситуация изменилась в последние годы. В 2023 году в Дании была открыта первая в мире действующая осмотическая электростанция. Японский проект во Фукуоке стал вторым объектом такого рода, но значительно превосходит предшественника по производительности. Станция способна вырабатывать 880 мегаватт-часов в год, что эквивалентно энергопотреблению примерно 220 домохозяйств и собственным нуждам опреснительной установки.

Особенность японской станции в том, что она использует концентрированный рассол, который обычно сбрасывался бы в реки, повышая их соленость выше нормы. Более резкий градиент концентраций повышает эффективность и позволяет внедрять технологию в реальных промышленных системах, а не только в лабораторных условиях.

Тем не менее трудности остаются. Наибольшие проблемы связаны с потерями энергии при перекачке воды и засорением мембран, что снижает КПД и требует регулярной замены дорогостоящих элементов. По словам профессора Мельбурнского университета Сандры Кентиш, несмотря на потери на трение и перекачку, потенциал осмотической энергетики остается огромным.

Ученые отмечают, что дальнейшее развитие мембранных и насосных технологий позволит повысить эффективность таких систем. Если стоимость материалов продолжит снижаться, осмотическая энергия в перспективе может стать сопоставимой с гидроэнергетикой и занять заметное место среди возобновляемых источников. Таким образом, проект во Фукуоке показывает, что даже традиционный процесс опреснения способен стать частью глобальной энергетической трансформации.

Другие интересные новости:

▪ Гиперзвуковой самолет NASA установил рекорд скорости

▪ Билл Гейтс создаст суперкорову

▪ Gmail Mobile

▪ Умный стоп-сигнал для велосипедов

▪ Человек на земле

Лента новостей науки и техники, новинок электроники

 

Интересные материалы Бесплатной технической библиотеки:

▪ раздел сайта Личный транспорт: наземный, водный, воздушный. Подборка статей

▪ статья Безопасность человека в информационном пространстве. Основы безопасной жизнедеятельности

▪ статья Какая змея питается исключительно птичьими яйцами намного больше себя? Подробный ответ

▪ статья Сколиоз. Медицинская помощь

▪ статья Автомат для полива цветов. Энциклопедия радиоэлектроники и электротехники

▪ статья С завязанными глазами. Секрет фокуса

Оставьте свой комментарий к этой статье:

Имя:


E-mail (не обязательно):


Комментарий:





Главная страница | Библиотека | Статьи | Карта сайта | Отзывы о сайте

www.diagram.com.ua

www.diagram.com.ua
2000-2026