Menu Home

Бесплатная техническая библиотека для любителей и профессионалов Бесплатная техническая библиотека


Ветроагрегат Ромашка для подъема воды. Чертеж, описание

Инструменты и механизмы для сельского хозяйства

Справочник / Инструменты и механизмы для сельского хозяйства

Комментарии к статье Комментарии к статье

Водоснабжение - острая проблема для многих начинающих членов садово-огородных кооперативов, владельцев приусадебных участков.

Подать воду из местных источников с помощью бензо- или электронасосов удается далеко не везде, испытанный же временем стародавний способ - колодец да бадья - тяжел и малопроизводителен.

Ведь для садового участка площадью 0,01 га в летнее время требуется около 2-3 м3 воды в сутки. Вот почему читательская почта все чаще обращается к практике использования энергии ветра: в ряде районов страны и за рубежом хорошо зарекомендовали себя ветромеханические водоподъемные агрегаты, многие из которых сконструированы и изготовлены самодеятельными авторами. К сожалению, нередко такие конструкции выполнены на примитивном уровне, что объясняется почти полным отсутствием массовой литературы по проектированию и изготовлению современных ветроустановок.

Сегодня мы решили познакомить читателей с устройством бытового ветромеханического агрегата "Ромашка", разработанного в Научно-производственном объединении "Ветроэн". По технико-экономическим показателям "Ромашка" принадлежит к числу современных отечественных устройств данного класса и превосходит по ряду параметров зарубежные образцы. Она проста конструктивно, не содержит дефицитных узлов и деталей, безопасна в работе, удобна и неприхотлива в эксплуатации.

Все это позволяет рекомендовать "Ромашку" для самостоятельного изготовления.

Установка "Ромашка" предназначена для подъема воды из любых водоисточников (скважины, колодца, открытого водоема и т. д.) с глубиной залегания воды до 8 м и может использоваться как на стационарных участках, так и на летних пастбищах.

Ветроагрегат рассчитан на применение в районах с умеренным климатом и среднегодовыми скоростями ветра не менее 3 м/с - это европейская часть СССР, Западная Сибирь, Казахстан, Средняя Азия, Закавказье, Алтай. Достоинство установки - автономность: постоянного присутствия или какого-либо вмешательства во время ее работы не требуется.

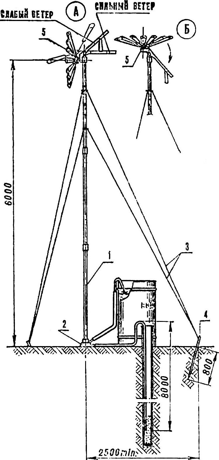
"Ромашка" (рис. 1) - ветродвигатель, в опоре стойки которого смонтирован насос. Трубчатая стойка крепится с помощью шести проволочных растяжек и трех забивных анкеров.

Технические характеристики

  • Производительность (при скорости ветра 5 м/с и общей высоте подъема воды 10 м), л/ч: 300
  • Максимальная глубина всасывания воды, м: 8,0
  • Минимальная рабочая скорость ветра, м/с: 2,5
  • Максимальная скорость ветра, м/с: 40
  • Максимальная высота нагнетания воды, м: 3,5 (5,5)
  • Диаметр ветроколеса, м: 1,2
  • Число лопастей ветроколеса, шт: 12
  • Максимальный коэффициент использования энергии ветра: 0,36
  • Максимальный КПД ветроагрегата: 0,22
  • Номинальная быстроходность ветроколеса (отношение окружной скорости лопасти и скорости ветра): 1,1
  • Максимальные обороты ветроколеса на холостом ходу, об/мин., не более: 250
  • Высота ветроагрегата до оси ветроколеса, м: 4 (6)
  • Длина всасывающего рукава, м: не более 30
  • Масса ветроагрегата с комплектом анкеров и растяжек при высоте 4 м, кг: не более 37

Ветроагрегат Ромашка для подъема воды
Рис. 1. Ветроагрегат "Ромашка" для подъема воды (А - рабочее положение, Б - останов) (нажмите для увеличения): 1 - трубчатая стойка, 2 - опорная часть с насосом, 3 - растяжки, 4 - анкер, 5 - ветродвигатель

Ветродвигатель (рис. 2) - многолопастный, тихоходный. Его двух- или трехсекционная стойка может быть высотой 4 или 6 м. В верхней части расположена головка с 12-лопастным ветроколесом, имеющим три степени свободы. При изменении направления ветра оно автоматически самоустанавливается с подветренной стороны опоры благодаря повороту головки. Для эффективного самоустановления ветрового колеса и стабилизации его в ветровом потоке, а также для разгрузки от изгибающего момента оси лопастей наклонены к оси ветроколеса и составляют с ней угол в 75°.

Ветроагрегат Ромашка для подъема воды
Рис. 2. Устройство ветродвигателя (нажмите для увеличения): 1 - стержень с лопастью, 2 - ступица (АМг-6), 3 - болт М6, 4, 5 - упорные кольца, 6 - втулка (Ст. 45), 7 - крышка (АМг-6), 8 - подшипник № 60205, 9 - винт М6 (6 шт.), 10 - тарелка (Ст. 20), 11- ось Ø 30 мм (Ст. 20), 12 - буфер (резина Ø 20 мм), 13 - фланец (Ст. 3), 14 - труба L 1830 мм, 15 - муфта, 16 - втулка (полиамид, фторопласт, 2 шт.), 17 - муфта (Ст. 20), 18 - труба L 2000 мм, 19 - тяга (Ст. 20 Ø 6 мм), 20 - ось (Ст. 20), 21, 22 - упорные кольца, 23 - подшипник № 1000908, 24 - труба (Ст. 3), 25 - упорное кольцо, 26 - корпус (Ст. 20), 27 - вертлюг (Ст. 45), 28 - гайка (Ст. 45), 29 - кольцо (проволока Ø 1,6 мм), 30 - велосипедный подшипник, 31 - шарик Ø 10 мм, 32 - скоба (Ст. 20 Ø 6 мм), 33 - труба L 420 мм, 34 - груз, 35 - рычаг (Ст. 3), 36 - втулка (Ст. 20), 37 - ось Ø 16 мм (Ст. 20), 38 - шайба (Ст. 20), 39 - болт М12 (Ст. 20), 40 - подшипник № 60201, 41 - втулка (БрАЖ-9-4), 42 - втулка (БрАЖ-9-4), 43 - полуось (Ст. 45), 44 - гайка М10, 45 - пружинная шайба (12 шт.), 46 - кольцо (Ст. 20), 47 - корпус вертлюга (Ст. 20), 48 - кольцо (Ст. 45), 49 - втулка (БрАЖ-9-4), 50 - шпилька М10 (Ст. 20), 51, 54 - щеки (Ст. 3), 52 - шпилька М10 (Ст. 20), 53 - ось (Ст. 20)

Чтобы уменьшить лобовое давление воздушного потока и устранить влияние гироскопических сил при резких боковых порывах ветра, ветроколесо закреплено на коромысле, способном поворачиваться относительно горизонтальной оси, перпендикулярной оси вращения и пересекающейся с осью опоры. Таким образом, под действием сильного ветра колесо как бы "всплывает" в воздушном потоке. При этом момент от сил лобового давления на лопасти (относительно горизонтальной оси поворота коромысла) уравновешивается весовым моментом, равным 0,2-0,3 кГм, этим обеспечивается начало отклонения ветроколеса от исходного положения при скорости ветра 5-6 м/с. Для компенсации части веса колеса коромысло с наветренной стороны оборудовано грузом-противовесом, в отверстие которого вставлена проволочная петля. Последняя служит для остановки ветроагрегата: достаточно легким шестом с крюком на конце, зацепив его за петлю, перевести ось колеса в вертикальное положение.

Механизм передачи усилия от ветроколеса к насосу - кулачково-рычажный, с вертикальной тягой, движущейся возвратно-поступательно. Тяга проходит внутри опоры ветродвигателя в антифрикционных направляющих. На одном конце двуплечего рычага, закрепленного на оси между щек коромысла, имеется ролик (шарикоподшипник). Он взаимодействует с внутренней боковой поверхностью тарелки, эксцентрично закрепленной на ступице ветроколеса. При вращении лопастей ролик, обкатываясь по тарелке, сообщает рычагу колебательное движение. Другой конец рычага через шарнир и вертлюг соединен с вертикальной тягой. Ось подвески вертлюга (шарнир) при среднем положении рычага совпадает с горизонтальной осью поворота коромысла. Таким образом исключается влияние действующих в механизме передачи сил на положение ветроколеса и коромысла в ветровом потоке.

Так как ось поворота рычага находится ниже оси поворота коромысла, амплитуда вертикальных перемещений тяги насоса возрастает при увеличении скорости ветра и отклонении коромысла с ветроколесом. Этим обеспечивается увеличение производительности насоса, оптимальное использование мощности ветроколеса при различных скоростях ветра и повышение КПД агрегата.

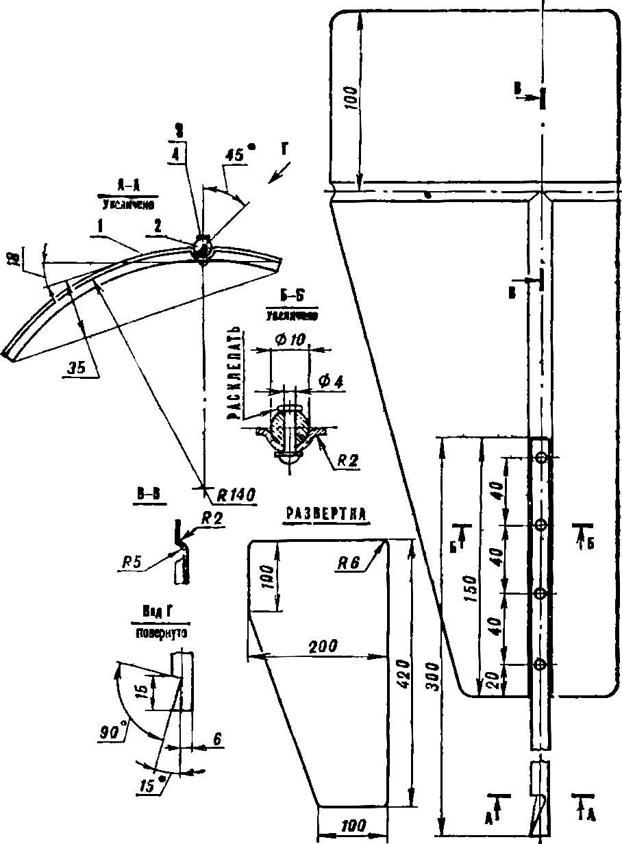
Лопасть (рис. 3) представляет собой лопатку с приклепанным к ней стальным термообработанным стержнем. Лопатка - трапециевидная в плане, отштампована из дюралюминиевого листа марки Д16 или Мг6 толщиной 1,2 мм; профиль - дужка постоянного радиуса. Для жесткости выполнен Т-образный зиг. Ось стержня проходит параллельно передней кромке, чем достигается геометрическая крутка лопасти 18°. Наклонная лыска на конце стержня обеспечивает одинаковое угловое положение лопастей в ступице ветроколеса (угол установки равен 23° на конце и 45° у комля), лыска способствует самозатяжке лопасти центробежными силами при ослаблении крепежных болтов (тем не менее болты после затяжки необходимо попарно контрить проволокой или отгибными шайбами). Масса отдельной лопасти - не более 400 г, а разность масс не должна превышать 5-10 г. Дисбаланс ветроколеса относительно оси вращения - не более 2,5 Гм.

Ветроагрегат Ромашка для подъема воды
Рис. 3. Лопасть ветродвигателя (нажмите для увеличения): 1 - лопатка (АМг-6), 2 - стержень (Ст. 45 Ø 10 мм), 3 - заклепка, 4 - шайба

Насос (рис. 4) - самовсасывающий, с горизонтальной проточной резиновой диафрагмой, имеет три полости. Приемная полость соединена с всасывающим рукавом, поддиафрагменная сообщается с приемной через шесть отверстий, перекрытых всасывающим клапаном, наддиафрагменная полость снизу соединяется с поддиафрагменной также шестью отверстиями, перекрытыми нагнетательным клапаном, а сверху - со сливным шлангом и с полостью опоры ветродвигателя. Последнее "спасает" ветроагрегат от поломки при случайных пережатиях сливного шланга.

Ветроагрегат Ромашка для подъема воды
Рис. 4. Насос (нажмите для увеличения): 1 - пробка, 2 - сетка, 3 - кольцо, 4 - всасывающий рукав, 5 - ниппели, 6 - диафрагма, 7 - корпус (АМг-6), 8 - всасывающий клапан, 9 - винт М5, 10 - гайка М5, 11, 14 - пружинные шайбы, 12 - болт М6 (6 шт.), 13 - гайка М6, 15 - днище (Ст. 3), 16 - прокладка, 17 - кольцо (Ст. 3), 18 - тарелка (Ст. 20), 19 - нагнетательный клапан, 20 - пружина, 21 - конус (Ст. 3), 22 - кольцо (Ст. 3), 23 - ось (Ст. 20), 24 - кольцо (Ст. 3), 25 - поливной шланг

Диафрагма по периферии зажата между верхним и нижним корпусами насоса шестью болтами, а по центру - между верхней и нижней тарелками с отверстиями - тремя винтами. В верхнюю тарелку запрессована ось насоса, в которую ввинчивается тяга ветродвигателя. На оси выполнена проточка, на нее надет пластинчатый нагнетательный клапан. Возвратная пружина с усилием от 5 до 10 кг через верхнюю тарелку поджимает диафрагму, обеспечивая ее возврат и силовое замыкание механизма передачи ветродвигателя.

Всасывающий рукав - полиэтиленовая (полипропиленовая) труба длиной 10...30 м с внутренним O 20 мм и толщиной стенки 2 мм, что позволяет избежать его сжатия атмосферным давлением при разрежении в насосе. Конец рукава снабжен приемным сетчатым фильтром с ячейками 1-1,5 мм.

Чтобы предотвратить обильное газовыделение из воды (кавитацию) при больших глубинах всасывания, приемная полость насоса снабжена компенсирующей камерой (кольцевая проточка в нижнем корпусе). Поддиафрагменная полость насоса выполнена с возможно меньшим свободным объемом, что позволяет увеличить степень разрежения и вести всасывание с глубины до 8,5 м. Продольный шлицевый паз шириной и глубиной 2-3 мм на нижней тарелке со стороны клапана предотвращает срыв клапана при малых зазорах между всасывающим клапаном и нижней тарелкой диафрагмы.

Все части насоса, работающие в воде, следует тщательно защитить ст коррозии. Наружные поверхности серийных ветроагрегатов покрывают грунтовкой ФЛ-ОЗК и окрашивают эмалью ПФ-115 в белый или светло-серый цвет, а концы лопастей, крышку ступицы, груз-противовес, соединительные муфты опоры и насос - в красный цвет. Трущиеся поверхности и подшипники необходимо смазать (ЦИАТИМ 201 или ЛИТОЛ).

"Ромашка" предназначена для эксплуатации в теплое время года при температуре воздуха не ниже плюс 1°. Перед наступлением заморозков ее необходимо остановить, переведя ветроколесо в положение "останов". На зиму же, чтобы увеличить сроки службы диафрагмы, ветроагрегат целесообразно разобрать, просушить и хранить в помещении.

"Ромашка" монтируется силами двух-трех человек на открытом для ветра месте так, чтобы расстояние от ветроколеса до ближайшего препятствия (деревьев, строений и т. п.) составляло не менее 25-50 м. Удаление от водоисточника зависит от длины всасывающего рукава и высоты подъема воды, но не должно превышать 15-20 м. Верхнюю точку всасывающего рукава следует располагать по возможности ниже. При высоком оголовке колодца (скважины) рукав выводится через отверстие в боковой стенке оголовка, проделанное в 150-200 мм от поверхности земли.

Устанавливают ветроагрегат на плотный утрамбованный грунт или твердую площадку, подставку. Анкера забиваются не ближе чем в 2,5-3 м от стойки ветроагрегата, равномерно по окружности, на глубину 400-800 мм. На слабом грунте (песок, торф) вместо анкеров целесообразнее применять закопанные на глубину 500-1000 мм якоря - пластины площадью не менее 0,06 м2.

Перед подъемом ветроагрегата растяжки предварительно цепляются за фланцы опоры и за отверстия в забитых анкерах, затем стойка с ветроколесом поднимается в вертикальное положение, при этом нижняя часть опоры (насос) подводится в центр площадки. Остается выбрать слабину растяжек и окончательно их закрепить. Натяжение верхнего яруса растяжек обеспечивается дозабивкой анкеров; нижний - страховочный ярус может слегка провисать.

Перед первым запуском следует залить в насос через сливной шланг 1-2 л воды - смочить и герметизировать клапаны насоса. При силе ветра 2,5-3 м/с через несколько минут после пуска агрегат начнет подавать воду.

Во время работы установки может возникнуть стук в кулачково-рычажном механизме, иногда затруднен запуск ветроколеса. Эти помехи устраняются регулировкой длины тяги ветродвигателя: навинчиванием (или свинчиванием) вертлюга на верхний резьбовой конец тяги.

Регулировку необходимо выполнить до подъема ветроагрегата, причем диафрагма насоса не должна доходить до крайнего нижнего положения на 2-3 мм при отклонении коромысла с ветроколесом на 45° от исходного положения. После регулировки тягу надо надежно законтрить, чтобы предотвратить самоотвинчивание.

Для гарантированного водообеспечения ветроагрегат эксплуатируется с водонакопителем - емкостью объемом 1,5-2 м3. Ее рекомендуется устанавливать не далее, чем в 10 м от насоса. На случай переполнения емкости следует предусмотреть специальный сливной патрубок или шланг.

Характеристики ветроагрегата, полученные на испытаниях при высоте всасывания 8 м и общей высоте подъема воды до 10 м, приведены на диаграммах (рис. 5 и 6). Максимальная скорость ветра при испытаниях составила 40 м/с.

Ветроагрегат Ромашка для подъема воды
Рис. 5. Зависимость производительности ветроагрегата "Ромашка" от скорости ветра

Ветроагрегат Ромашка для подъема воды
Рис. 6. Среднесуточная производительность ветроагрегата "Ромашка" для районов с различными среднегодовыми скоростями ветра

Опыт годичной эксплуатаций ветроагрегатов "Ромашка" показал их надежность, простоту и удобство обслуживания.

Автор: С.Никонов

 Рекомендуем интересные статьи раздела Инструменты и механизмы для сельского хозяйства:

▪ Тракторный прицеп-самосвал

▪ Механическая сеялка-однорядка

▪ Мотыга-перевертыш

Смотрите другие статьи раздела Инструменты и механизмы для сельского хозяйства.

Читайте и пишите полезные комментарии к этой статье.

<< Назад

Последние новости науки и техники, новинки электроники:

Власть является ключевым фактором счастья в отношениях 11.03.2026

Исследования семейных и романтических отношений показывают, что длительное счастье пары зависит не только от привычных факторов, таких как доверие, уважение и преданность, но и от более тонких психологических аспектов. Современные ученые ищут закономерности, которые отличают действительно счастливые пары от остальных, чтобы понять, какие механизмы поддерживают гармонию в отношениях. Группа исследователей из Университета Мартина Лютера в Галле-Виттенберге и Бамбергского университета провела опрос среди 181 пары, которые состояли в совместных отношениях более восьми лет и прожили вместе хотя бы месяц. Участники заполняли анкету, описывая различные аспекты своих отношений, включая распределение обязанностей, эмоциональную поддержку и степень вовлеченности в совместные решения. Анализ данных показал интересный паттерн: пары, где оба партнера ощущали высокий уровень личной власти, оказывались наиболее счастливыми и удовлетворенными. В данном контексте под властью понимается способност ...>>

Защищенная колонка-повербанк Anker Soundcore Boom Go 3i 11.03.2026

Компания Anker представила новую модель линейки Soundcore - колонку Soundcore Boom Go 3i, ориентированную на активное использование на улице. Новинка отличается высокой степенью защиты: корпус соответствует стандарту IP68, что обеспечивает водо- и пыленепроницаемость, а ударопрочный дизайн выдерживает падение с высоты до одного метра. За качество звука отвечает 15-ваттный драйвер, обеспечивающий пик громкости до 92 дБ, а технология BassUp 2.0 усиливает низкие частоты, делая звучание более насыщенным. Колонка обладает автономностью до 24 часов, а LED-индикатор позволяет контролировать уровень заряда батареи. Кроме того, Soundcore Boom Go 3i может выполнять функцию павербанка: согласно внутренним тестам, устройство способно зарядить iPhone 17 с нуля до 40% за один час, что делает его полезным аксессуаром в походах и поездках. Среди функциональных особенностей модели стоит выделить технологию Auracast, которая улучшает подключение и позволяет создавать стереопару из двух колонок ...>>

Раннее воздержание от алкоголя перестраивает мозг и иммунитет 10.03.2026

Алкогольная зависимость - хроническое расстройство с компульсивным употреблением спиртного, которое влияет не только на поведение, но и на функционирование мозга и иммунной системы. Недавние исследования показали, что даже на ранних этапах воздержания организм начинает перестраиваться, открывая новые возможности для терапии зависимости. Ученые сосредоточились на пациентах, находящихся в первые недели абстиненции, и зафиксировали значительные изменения в мозговой активности. С помощью функциональной магнитно-резонансной томографии они выявили перестройку сетей нейронных связей, отвечающих за контроль импульсов и принятие решений. Эти изменения могут быть ключевыми для восстановления самоконтроля и снижения риска рецидива. Одновременно с нейронной перестройкой исследователи наблюдали колебания иммунной системы. В крови повышался уровень цитокинов - сигнальных белков, регулирующих воспалительные процессы. Эти данные свидетельствуют о существовании нейроиммунного взаимодействия, при ...>>

Случайная новость из Архива

Формирование ложных воспоминаний у шмелей 27.09.2024

Шмели, известные своим удивительным поведением и навыками, оказались способны формировать ложные воспоминания - подобно людям. Ученые впервые заставили этих насекомых объединять элементы прежних воспоминаний в новые образы, которые никогда не существовали. Этот факт свидетельствует о том, что память шмелей является конструктивной, то есть они не всегда точно воспроизводят прошлые события. Подобно людям, их мозг способен перестраивать воспоминания, что может также указывать на наличие эпизодической памяти и даже способности мысленно представлять будущее.

Ранее способность создавать ложные воспоминания, или конъюнкционные ошибки, считалась исключительно человеческой чертой. Однако недавние исследования показали, что некоторые животные также склонны к подобным когнитивным феноменам. Например, признаки ложных воспоминаний были выявлены у каракатиц. Это открытие побудило ученых исследовать память более простых организмов, таких как шмели, чтобы лучше понять природу формирования воспоминаний и влияние на них различных факторов, включая такие заболевания, как деменция.

Исследование, проведенное ученой из Университета Стерлинга в Шотландии, было направлено на изучение способности шмелей создавать ложные воспоминания. Для этого были выбраны дикие шмели трех видов: полевые (Bombus pascuorum), земляные (Bombus terrestris) и городские (Bombus hypnorum). Эксперимент включал демонстрацию насекомым двух различных объектов-приманок, содержащих сахарный сироп. После небольшого перерыва шмелям предлагали выбрать один из четырех новых объектов: один объект был знаком им, другой - представлял комбинацию двух знакомых объектов, третий включал как новые, так и знакомые признаки, а четвертый был полностью новым.

Результаты эксперимента показали, что шмели могут правильно узнавать ранее виденные объекты, что свидетельствует о хорошей способности к запоминанию. Однако, когда они допускали ошибки, чаще всего выбирали объекты, содержащие уже знакомые элементы, а не совершенно новые. Это указывает на то, что их мозг склонен к созданию новых воспоминаний на основе старых, что и является проявлением конъюнкционных ошибок памяти.

Данное исследование демонстрирует, что память шмелей гораздо сложнее, чем считалось ранее. Способность шмелей реконструировать детали воспоминаний говорит о более высоком уровне их когнитивных способностей. Это открытие может значительно расширить наше понимание эволюции памяти и умственных процессов в животном мире.

Наличие общих когнитивных особенностей у шмелей и людей, таких как склонность к ошибкам памяти, дает ученым уникальную возможность глубже изучить, как и почему возникают такие ошибки. Это также может помочь в исследовании заболеваний, связанных с ухудшением памяти, например, деменции, и пролить свет на механизмы, лежащие в основе процессов запоминания и восприятия информации.

Другие интересные новости:

▪ В Антарктиде теплеет

▪ Торговые автоматы предоставят бесплатный Wi-Fi

▪ Технология записи и стирания магнитов при помощи импульсов лазерного света

▪ Обязательная биометрическая регистрация

▪ Глобальное потепление ускоряет цикл осадков

Лента новостей науки и техники, новинок электроники

 

Интересные материалы Бесплатной технической библиотеки:

▪ раздел сайта Цветомузыкальные установки. Подборка статей

▪ статья Как мало прожито, как много пережито! Крылатое выражение

▪ статья Какие компьютерные пираты пытались засудить других пиратов за незаконное использование их марки? Подробный ответ

▪ статья Функциональный состав телевизоров Toshiba. Справочник

▪ статья Тороидальный сварочный трансформатор из доступных деталей. Энциклопедия радиоэлектроники и электротехники

▪ статья Dendy: выбор, эксплуатация, ремонт. Энциклопедия радиоэлектроники и электротехники

Оставьте свой комментарий к этой статье:

Имя:


E-mail (не обязательно):


Комментарий:





Главная страница | Библиотека | Статьи | Карта сайта | Отзывы о сайте

www.diagram.com.ua

www.diagram.com.ua
2000-2026