Бесплатная техническая библиотека
Идеальный замок. Советы домашнему мастеру

Справочник / Строителю, домашнему мастеру
Комментарии к статье
Многие знают или догадываются, что любой замок, даже самый дорогой, можно открыть, имея определенные навыки и приспособления. Конструкция же предлагаемого замка проста, но обеспечит максимум "удовольствия" опытному взломщику, прежде чем он его "раскусит". Людям, когда-либо интересовавшимся этими вопросами, наверняка известен замок с ключом типа "морской болт" (переламывающийся болт) - на верхней грани щеколды или обычной задвижки нарезаются зубья (пазы), в зацепление с которыми входит "падающая" часть ключа, и при повороте последнего щеколда отодвигается. Здесь все хорошо, но при необходимости, а может быть, и злом умысле за две-три попытки легко подбирается нужная длина свободного конца ключа...
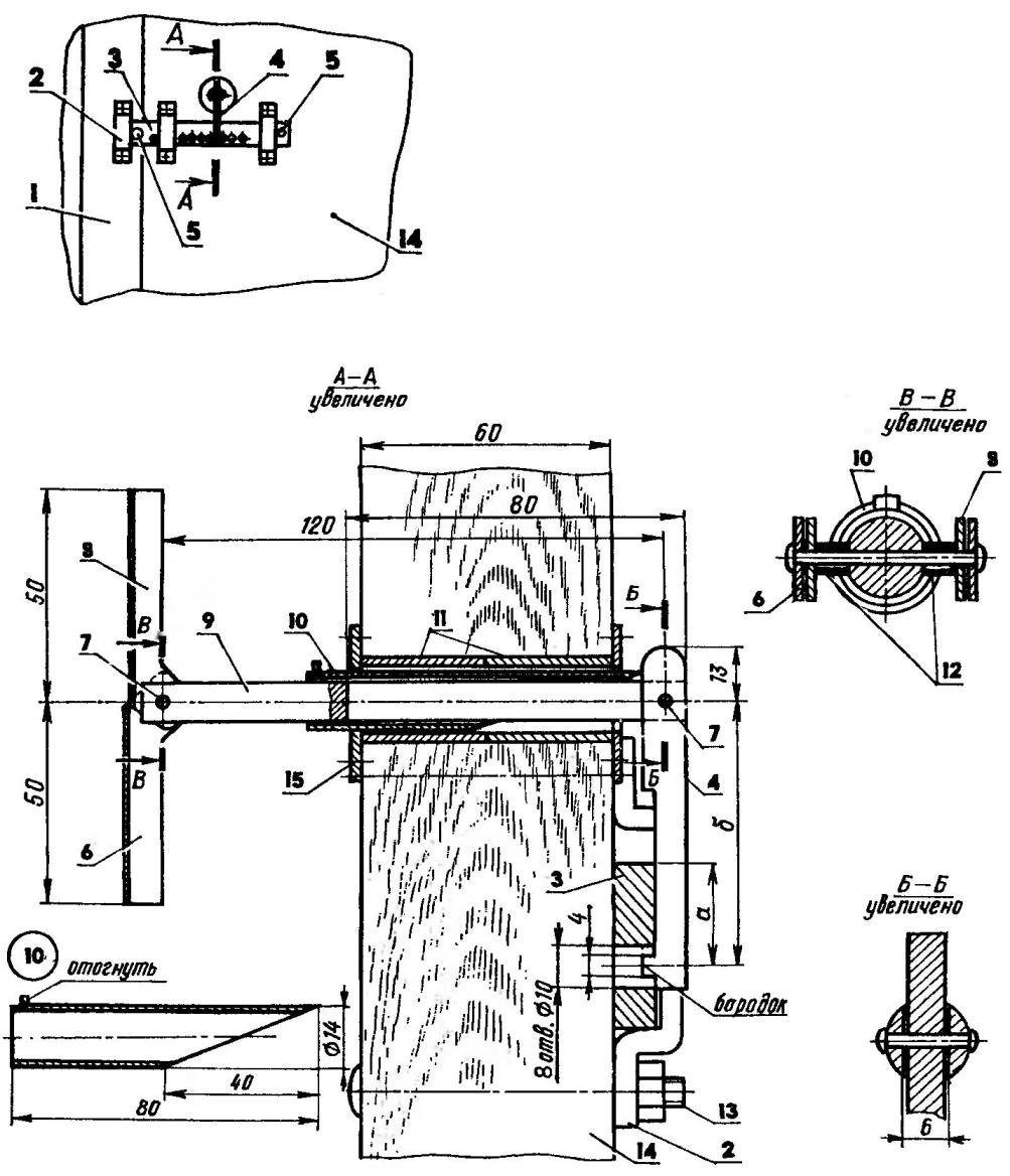
В нашем случае все несколько иначе. На дверном косяке и самой двери закрепляются (желательно сквозными болтами с плоской гладкой головкой) скобы, в которые вставляется щеколда с рядом просверленных в ней отверстий. Причем их количество, шаг и расположение относительно верхнего края щеколды (размер "а") выбираются произвольно. В двери над щеколдой на расстоянии "б" (60 - 100 мм) от оси отверстий и посередине между дверными скобами просверливается отверстие - замочная скважина. Надо иметь в виду, что чем выше оно будет находиться над щеколдой, тем длиннее получится ключ. Втулки, вставленные в отверстие на клею, продлят жизнь двери.
Теперь о конструкции ключа. Он состоит из цилиндрического штока с прорезью, двух рычагов, выполненных из половинок разрезанной вдоль оси трубки, трубчатого движка с косым срезом и язычка. Шарнирное соединение деталей ключа, прорезь штока и срез движка служат для складывания ключа. Разноплечий язычок имеет бородок, место которого (размер "б") определяется из взаимного расположения скважины и отверстий в щеколде. Так как движок в процессе открывания-закрывания замка приходится разворачивать на 180°, то контролировать его положение довольно трудно. С этой целью нв свободном (на чертеже - левом) конце движка слегка отогнута часть кромки, показывающая, где находится носик движка (вместо отгиба можно сделать пропил). Чтобы движок не слетал со штока, головки заклепок, удерживающих язычок, лучше выполнить высокими.
Общий вид замка (все детали выполнены из стали Х18Н9Т) (нажмите для увеличения): а, б - секретные размеры; 1 - косяк дверной; 2 - скоба (полоса 40x5, 3 шт.); 3 - щеколда (полоса 40x10); 4 - язычок ключа (полоса 10x4); 5 - ограничители хода; 6 - рычаг ключа нижний (труба 22x2, L58); 7 - оси (пруток 03, 2 шт.); 8 - рычаг ключа верхний (труба 18x1,4, L58); 9 - шток ключа (пруток Ø10); 10 - движок; 11 - втулки дверной скважины (труба 16x1); 12 -втулки шарнира (труба 6x1); 13 - болт М8; 14 - дверь; 15 - накладка (лист s2, 2 шт.).
Схема действий при открывании-закрывании замка (нажмите для увеличения)
Идеальность такой конструкции состоит в том, что нащупать отверстия на щеколде с наружной стороны двери практически невозможно ничем, кроме как "родным ключом". Однако остается возможность "вычисления" положения щеколды по головкам болтов крепления скоб. Для исключения этого скобы делаются несимметричными или с длинными лапками, а чтобы недоброжелатель не смог рассмотреть секрет замка с внутренней стороны (при открытой двери), механизм прикрывается коробом или резиновым листом.
Автор: В.Кудрин
Рекомендуем интересные статьи раздела Строителю, домашнему мастеру:
▪ Электрический бойлер
▪ Приставная лестница со ступеньками
▪ Садовый столик из подручных материалов
Смотрите другие статьи раздела Строителю, домашнему мастеру.
Читайте и пишите полезные комментарии к этой статье.
<< Назад
Последние новости науки и техники, новинки электроники:
Власть является ключевым фактором счастья в отношениях
11.03.2026
Исследования семейных и романтических отношений показывают, что длительное счастье пары зависит не только от привычных факторов, таких как доверие, уважение и преданность, но и от более тонких психологических аспектов. Современные ученые ищут закономерности, которые отличают действительно счастливые пары от остальных, чтобы понять, какие механизмы поддерживают гармонию в отношениях.
Группа исследователей из Университета Мартина Лютера в Галле-Виттенберге и Бамбергского университета провела опрос среди 181 пары, которые состояли в совместных отношениях более восьми лет и прожили вместе хотя бы месяц. Участники заполняли анкету, описывая различные аспекты своих отношений, включая распределение обязанностей, эмоциональную поддержку и степень вовлеченности в совместные решения.
Анализ данных показал интересный паттерн: пары, где оба партнера ощущали высокий уровень личной власти, оказывались наиболее счастливыми и удовлетворенными. В данном контексте под властью понимается способност ...>>
Защищенная колонка-повербанк Anker Soundcore Boom Go 3i
11.03.2026
Компания Anker представила новую модель линейки Soundcore - колонку Soundcore Boom Go 3i, ориентированную на активное использование на улице.
Новинка отличается высокой степенью защиты: корпус соответствует стандарту IP68, что обеспечивает водо- и пыленепроницаемость, а ударопрочный дизайн выдерживает падение с высоты до одного метра. За качество звука отвечает 15-ваттный драйвер, обеспечивающий пик громкости до 92 дБ, а технология BassUp 2.0 усиливает низкие частоты, делая звучание более насыщенным.
Колонка обладает автономностью до 24 часов, а LED-индикатор позволяет контролировать уровень заряда батареи. Кроме того, Soundcore Boom Go 3i может выполнять функцию павербанка: согласно внутренним тестам, устройство способно зарядить iPhone 17 с нуля до 40% за один час, что делает его полезным аксессуаром в походах и поездках.
Среди функциональных особенностей модели стоит выделить технологию Auracast, которая улучшает подключение и позволяет создавать стереопару из двух колонок ...>>
Раннее воздержание от алкоголя перестраивает мозг и иммунитет
10.03.2026
Алкогольная зависимость - хроническое расстройство с компульсивным употреблением спиртного, которое влияет не только на поведение, но и на функционирование мозга и иммунной системы. Недавние исследования показали, что даже на ранних этапах воздержания организм начинает перестраиваться, открывая новые возможности для терапии зависимости.
Ученые сосредоточились на пациентах, находящихся в первые недели абстиненции, и зафиксировали значительные изменения в мозговой активности. С помощью функциональной магнитно-резонансной томографии они выявили перестройку сетей нейронных связей, отвечающих за контроль импульсов и принятие решений. Эти изменения могут быть ключевыми для восстановления самоконтроля и снижения риска рецидива.
Одновременно с нейронной перестройкой исследователи наблюдали колебания иммунной системы. В крови повышался уровень цитокинов - сигнальных белков, регулирующих воспалительные процессы. Эти данные свидетельствуют о существовании нейроиммунного взаимодействия, при ...>>
Случайная новость из Архива Оптимизм - это ключ к долголетию
23.09.2024
Долголетие и здоровье - важные темы в современной науке, и поиск факторов, способствующих продлению жизни, становится все более актуальным. Одним из таких факторов, как показывают недавние исследования, является оптимизм.
Специалисты из Гарвардской школы общественного здравоохранения имени Т. Х. Чана провели крупномасштабное исследование, которое выявило связь между позитивным мышлением и увеличенной продолжительностью жизни. Результаты их работы могут стать важным аргументом в пользу того, что психологическое состояние человека влияет не только на его повседневное самочувствие, но и на общее здоровье и долголетие.
Исследование охватывало более 159 тысяч женщин в США на протяжении 26 лет. Участницы оценивали свой уровень оптимизма с помощью специального теста - "Теста жизненной ориентации", который часто используется для изучения этого психологического качества. Помимо оптимизма, ученые учитывали и другие факторы, такие как уровень образования, семейное положение, доход и наличие хронических заболеваний.
Результаты исследования оказались весьма показательными: те женщины, которые вошли в 25% самых оптимистичных, жили в среднем на 5,4% дольше, чем участницы с наименьшим уровнем оптимизма. Более того, оптимисты имели больше шансов дожить до 90 лет, чем их менее позитивные сверстники. Это подчеркивает важность позитивного настроя для увеличения продолжительности жизни.
Интересно, что эта зависимость прослеживалась среди разных этнических групп, что свидетельствует о том, что оптимизм как фактор долголетия может быть универсален. При этом вклад образа жизни в этот результат был оценен как сравнительно небольшой. Иными словами, даже при прочих равных условиях, оптимизм может оказать ощутимое влияние на здоровье и долголетие.
Хаями Кога, один из ведущих авторов исследования, отмечает, что положительное мышление помогает смягчать как психологический стресс, так и физиологические реакции на него. Оптимисты, как правило, имеют более высокую социальную поддержку и лучше справляются с проблемами, используя эффективные стратегии планирования и решения задач. Это может уменьшать риски для здоровья и способствовать активному долголетию.
Подобные выводы находят подтверждение и в других исследованиях. Так, ученые из Бостонского университета также установили, что оптимизм способствует "исключительному долголетию" - достижению возраста 85 лет и более. Их работа показала, что позитивный взгляд на мир помогает справляться с трудностями и снижает уровень хронического стресса, что оказывает благотворное влияние на здоровье в долгосрочной перспективе.
Оптимизм - это не просто эмоциональное состояние, но и важный фактор, способный продлить жизнь. Его влияние на здоровье было доказано как в рамках данного исследования, так и в предыдущих работах. Поддержание позитивного настроя, развитие социальных связей и эффективных стратегий решения проблем могут стать важными шагами на пути к активному долголетию.
|
Другие интересные новости:
▪ Новый принцип связи - быстрее оптоволокна
▪ Подводный Wi-Fi для наблюдения за океанами
▪ Динамические головки с применением бамбука и аналога опала
▪ Кто больше спит, тот меньше чувствует
▪ Эксперименты с привидениями
Лента новостей науки и техники, новинок электроники
Интересные материалы Бесплатной технической библиотеки:
▪ раздел сайта Опыты по физике. Подборка статей
▪ статья Наркотики и опасность их употребления для здоровья. Основы безопасной жизнедеятельности
▪ статья Как пользователи интернета, не зная того, помогают оцифровывать старые книги? Подробный ответ
▪ статья Одновибратор. Радио - начинающим
▪ статья Клаускорректор II. Стабилизированный блок питания лампового предусилителя (300 вольт 50 миллиампер + 6.3 вольт 3 ампера). Энциклопедия радиоэлектроники и электротехники
▪ статья Стабилизатор напряжения с полевым транзистором, 11-19/9 вольт 0,1 ампер. Энциклопедия радиоэлектроники и электротехники
Оставьте свой комментарий к этой статье:
Главная страница | Библиотека | Статьи | Карта сайта | Отзывы о сайте

www.diagram.com.ua
2000-2026