Menu Home

Бесплатная техническая библиотека для любителей и профессионалов Бесплатная техническая библиотека


Фреза в саду. Советы домашнему мастеру

Строителю, домашнему мастеру

Справочник / Строителю, домашнему мастеру

Комментарии к статье Комментарии к статье

Свою первую мотофрезу А. Михранов построил в 1981 году. В качестве прототипа использовал разработку своего друга Петра Койнова. Хотя многое сделал иначе: подвеску двигателя, руль, установку подшипников, трехступенчатую зубчатую передачу и так далее.

Испытания, правда, выявили недостатки: двигатель перегружался из-за низкого передаточного отношения и большого диаметра фрез; трижды отламывались расположенные наклонно лопасти вентиляторов охлаждения головки цилиндра. После того как были уменьшены обороты блока фрез до 82-85 в минуту и устранены другие неполадки, машина стала работать безотказно.

За прошедшие годы фреза была многократно повторена. Только в Ямбопьском округе сейчас имеется около пят десяти таких конструкций. Действительно, агрегат получился достаточно технологичным. Лишь 15- 20 деталей нужно изготовить в мастерской. Все остальные можно сделать дома с применением сверлильного станка и электросварочного аппарата. Кроме того, некоторые детали - такие, как дистанционные трубки, - изготовлены на сверлильном станков (при наличии другого станочного оборудования конструкцию трубок можно упростить).

Фреза в саду
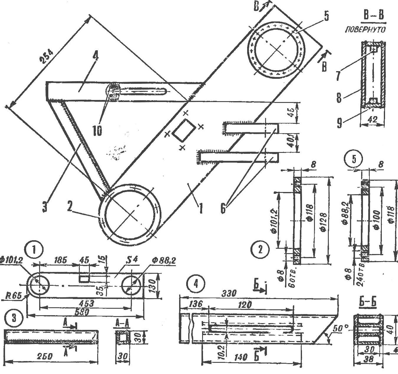
Рис. 1. Общий вид мотофрезы: 1 - фреза, 2 - задняя опора. 3 - кикстартер, 4 - рычаг сцепления, 5 - рычаг газа, 6 - топливный бак, 7 - двигатель, 8 - глушитель, 9 - рама

В большинстве случаев предпочтение отдано готовым деталям: зубчатому колесу, кранику, ручке газа, топливному баку и многим другим заводским узлам.

Многие из тех, кто взялся за повторение фрезы, сделали себе еще и прицепы для перевозки грузов в 250-300 кгс. Они уверяют, что на ровной дороге и на третьей передаче достигают скорости 18-20 км/ч.

Фреза в саду
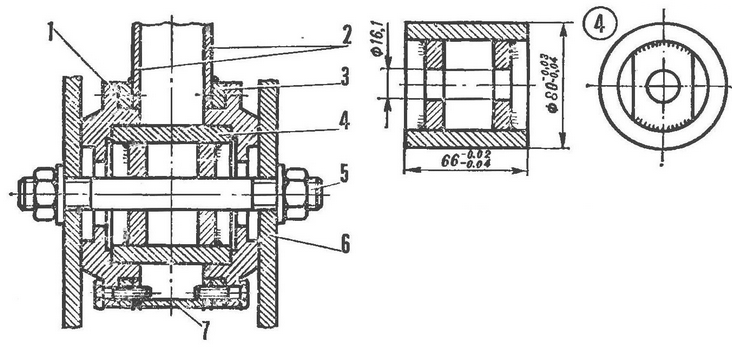
Рис. 2. Узлы и детали мотофрезы (нажмите для увеличения): 1 - шайба, 2 - ступица зубчатого колеса, 3 - зубчатое колесо, 4 - сальники, 5 - открытый корпус верхнего подшипника. 6 - верхние подшипники, 7 - рама, 8 - планка руля, 9 - кронштейн руля с зубчатой шайбой, 10 - верхнее вало-зубчатое колесо, 11 - закрытый корпус верхнего подшипника, 12 - верхняя проушина задней опоры, 13 - кронштейн задней опоры, 14 - задняя опора, 15 - ножи фрезы, 16 - ось опоры, 17 - крышка смотрового оконца, 18 - дистанционные втулки, 10 -укороченная дистанционная втулка, 20 - корпуса нижних подшипников, 21 - нижний подшипник, 22 - главное вало-зубчатое колесо, 23 - стягивающая шпилька, 24 - глушитель, 25, 26 - скобы крепления двигателя.

Теперь об особенностях обработки почвы. Утверждения некоторых любителей о том, что. она должна быть заранее хорошо вспахана большим трактором, что невозможно фрезеров ть необработанную пустошь, необоснованны. Трудности появляются только при высокой траве или при обработке очень спекшейся и высохшей почвы. Но достаточно скосить и убрать траву с участка, чтобы мотофреза (при достаточно влажной земле) уверенно работала. Более того, когда автору пришлось недавно копать яму-водоспив диаметром около двух метров и глубиной по пояс, он семь или восемь раз использовал мотофрезу, в землю выбрасывал лопатой. Это убедило его в том, что если оставить на фрезах только два ножа (шириной около 4 см), то можно копать даже канавы, скажем, для электрического кабеля.

Правда, мотофреза имела-таки один существенный недостаток. При обработке сухой почвы вентилятор воздушного охлаждения втягивал пыль, которая попадала в контакты прерыватепя зажигания, и двигатель глохнул. Приходилось снимать кожух и лопасти вентилятора и чистить контакты. На это уходило 5-10 минут.

Фреза в саду
Рис. 3. Рама мотофрезы (нажмите для увеличения): 1 - левая щека рамы, 2 - нижнее кольцо подшипникового узла (2 шт), 3 - опора крепления двигателя, 4 - поперечный кронштейн. 5 - верхнее кольцо подшипникового узла (2 шт.), в - проушины задней опоры, 7 - кубик крепления крышки коробки, 8 - правая щека, 6 - опоясывающая полоса, 10- внутренние перегородки.

Проблема была разрешена с помощью гофрированной трубы-воздухозаборника. Теперь воздух поступает с высоты около полуметра над землей, что предотвращает попадание пыли в прерыватепь.

Несколько слов о самом двигателе (от мотоцикла). Цилиндр прошлифован до второго ремонтного размера, и его рабочий объем тем самым увеличился. В результате номинальная мощность возросла приблизительно до 4 п. с. Момент зажигания по паспорту следовало устанавливать от 1,1 до 1,2 мм от верхней мертвой точки (8МТ). Автор же выставил его с помощью индикатора, дающего точность до сотых допей миллиметра, на 1,75 мм перед ВМТ. После чего двигатель стал работать очень устойчиво.

Фреза в саду
Рис. 4. Сборка коробки рамы (нажмите для увеличения): 1 - корпус нижнего подшипника,2 - щеки рамы, 3 - кольцо нижнего подшипникового узла, 4 - монтажная втулка (ложный корпус подшипника), 5 - монтажная шпилька, 6 - пластина. 7 - опоясывающая полоса

Подшипники передачи работают в Смазке, как, впрочем, и сама цепь. На огне топят 400-500 г обычного солидола и выливают в цепную коробку рамы. Пока он не загустел, цепь проворачивают несколько раз, чтобы смазать ее по всей длине.

У фрезы легкое управление, не требующее больших физических усилий. Чтобы не топтать обработанную почву. Оператор идет сбоку, придерживая агрегат одной рукой. Производительность машины приблизительно такая: на виноградник площадью пять соток тратится 35-40 минут при глубине фрезерования 15-20 см, топлива расходуется около 1.2 литра в час.

Фреза в саду
Рис. 5. Сборка руля: 1 - зубчатая шайба, 2 - планка, 3 - монтажный болт, 4 - трубы

Соотношение бензина и масле в нем 20 : 1. Несколько повышенное содержание масла в смеси вполне допустимо для двухтактных двигателей. Вкупе с хорошим охлаждением это позволяет Часами работать в августовскую жару без перегрева двигателя.

А теперь о конструкции отдельных узлов и деталей мотофрезы, о том, как и из чего они сделаны. Начнем с рамы. Обе щеки ее вырезаны из листовой стали толщиной 4 мм. Прямоугольное смотровое оконце проделано только на левой из них. Затем обе щеки наживлены - соединены несколькими точками электросварки с опоясывающей полосой, и затем вместе обработаны. Отверстия с указанными размерами обточены борштангой.

Фреза в саду
Рис. 6. Дистанционная втулка: 1 - штифт. 2 - дистанционная трубка. 3 - планка

Верхние и нижние кольца подшипниковых узлов приварены к соответствующим отверстиям с помощью комплектов направляющих шайб и монтажных шпилек М18. Один комплект предназначен для монтажа нижних колец, другой - для верхних. После того, как остыли сварные швы, шпильки И шайбы были сняты, края отверстия обработаны заточенным треугольным Фабером, чтобы корпуса подшипников свободно стали на свои месте. Зазор между ними порядка 0,10-0,12 мм. Операция эта трудоемкая и потребовала особой аккуратности.

Все кольца вырезаны газовой горелкой из листовой стали толщиной 8 мм и обточены на токарном станке. Отверстия под болты в них просверлены заранее, до сварки, а уж потом нарезана резьба. Более того, корпуса верхних подшипников со своими кольцами рассверлены одновременно, чтобы обеспечить соосность всех 24 отверстий. Болты М8х20 вошли в них свободно и легко завинчиваются. Всего их понадобилось 24 штуки.

Фреза в саду
Рис. 7. Сверление отверстий под штифты: 1 - нажим, 2 - дистанционная трубка, 3 - кондуктор. 4 - шпилька

Сварка рамы. Кольца верхних подшипниковых узлов смонтированы так же, как и нижних, с той лишь разницей, что монтажная втулка удерживалась не одной внутренней, в двумя наружными шпильками и двумя П-образными профилями, так как корпус левого подшипника не имел центрального отверстия.

Все шпильки две верхних и одна нижняя) затянуты до отказа, щеки опоясаны полосой стали шириной 34 и толщиной 5 мм и соединены точечной сваркой с шагом 50 мм по всей длине. Затем началась окончательная сборка рамы, причем после накладывания шва длиной 60-80 мм сварка прервана и аналогичный шов наложен с противоположной стороны щеки. Это сделано для того, чтобы вся рама не покоробилась и труд не оказался напрасным.

После того как металл остып, шпипьки и болты были отвинчены, а корпуса подшипников сняты. Но не раньше, потому что при сварке отверстия в кольцах под них могли деформироваться, и тогда вновь потребовалось бы шабрение.

Монтажные втулки (ложные корпуса подшипников) использованы при сборке рамы для того, чтобы получить полную соосность корпусов подшипников как нижнего вало-зубчатого колеса, так и верхнего. Без них щеки рамы при сварке коробятся - скручиваются.

Торцевые поверхности и внешние диаметры втулок обработаны за одну установку в шпинделе токарного стенка правым и левым резцами. Поэтому для нижней втулки заранее в толстостенную трубу вварены две планки с центральными отверстиями d 16,1 мм. От точности обработки ложных корпусов в большой степени зависело качество рамы.

Далее к ее основной коробке были приварены поперечный кронштейн и опора крепление двигателя. Пропилы в кронштейне проделаны пальцевой фрезой d 10 мм. Опора сварена из полосок стали 30X4 мм.

Крышка смотрового оконца вырезана из листовой стали толщиной 2 мм и Прикреплена к раме четырьмя болтами М4Х6, с уплотнением герметиком - снимается она раз в год, чтобы проверить состояние основной цепи.

В последнюю очередь приварены два стальных кубика со стороной 10 мм в | мм от верхнего среза основной колобки. В них просверлены отверстия и нарезана резьба для винтов М6х6 крышки, через которую пропущена основная цель и

О главном вало-зубчатом колесе. Оно из стали 40Х с последующей термообработкой. Зубья у него в количестве 15 штук - с тем же шагом, что н у основной цепи (19,05 мм). Можно использовать и готовое зубчатое колесо, если найдется подходящее.

Отверстия в торцах вало-зубчатого колеса d 7,5 мм просверлены с применением кондуктора. Его же нужно использовать и при изготовлении дистанционных втулок, которые из всех деталей мотофрезы подвергаются самым большим нагрузкам. Все отверстия d 7,5 мм сверлились с одной заточки сверла. При сверлении сохранялась центровая маркировка точками, чтобы штифты одной втулки беспрепятственно входили в отверстия другой. Торцы втулок перпендикулярны их продольным осям.

При посадке штифтов использовано приспособление-набивка. Глубина осевого отверстия в нем точно 12 мм - это особенно важно при монтаже. Приспособление не закаливалось.

Важно также, что допуск на левую часть штифтов выдержан в указанных пределах.

Планки дистанционных втулок (шесть штук) - из стали 3 толщиной 5 мм. Отверстие, расстояния между которыми 73 мм, просверлены с допусками, указанными в чертеже. В противном случае невозможно было бы достигнуть взаимозаменяемости ножей фрез.

Последовательность сборки каждой дистанционной втулки следующая: сначала были запрессованы штифты левого торцов. Затем приварена планка в 10 мм от края втулки и только тогда просверлены отверстия в правом торце.

Скобы крепления двигателя изготовлены из стальной полосы 30х10 мм. Все указанные размеры выдержаны точно: оси отверстий должны были совладеть с осями приваренных гаек.

Глушитель сделан из отрезка длиной около 200 мм от корпуса глушителя мотоцикла "Балкан-50". Донья его вырезаны из листовой стали толщиной 1 мм. Дистанционная перегородка - той же толщины и диаметром на 9 мм меньше внутреннего диаметра корпуса глушителя) приклепана ко дну с выходным отверстием тремя особыми стержнями, расположенными под углом 120° друг к другу. И только после этого вварено дно в корпус газовой го-репкой. С таким глушителем шума при работе мотофрезы не больше, чем от бензопилы "Дружба-4".

Материал ступицы зубчатого колеса - сталь 45. Цапфа верхнего вало-зубчатого колеса плотно входит в отверстие ступицы. Радиальное биение отверстий d 28 и 60 мм и торцевое биение лицевой поверхности со стороны d 60 мм - минимально, так как автор обрабатывал их на токарном станке за одну установку; отверстие d 8 мм сверлил одновременно с отверстиями в большом зубчатом колесе с 45 зубьями.

Фреза в саду
Рис. 8. Приспособление-набивка

Верхние корпуса подшипников вымочены из чугуна. В них скрыта одна из хитростей конструкции: гнезда подшипников проточены с 10-миллкметровым смещением относительно центральной оси, что дает возможность регулировать натяжение цепи.

Здесь надо обратить внимание на следующие моменты: на максимально точное совмещение осей отверстий в корпусах и такое же точное сверление 24 отверстий в верхних кольцах коробки рамы. Необходимо было, чтобы корпуса подшипников могли устанавливаться с шагом 15° по окружности (для изменения натяжения основной цепи).

Материал вало-зубчатого колеса сталь 40Х. Колесо подвергнуто термообработке методом закалки в масле при нагревании до 633° и отпуске до НRс = 45-47.

Верхняя проушина рамы состоит из втулки (сталь 45), полоски 20х6 мм и ребра из листовой стали толщиной 4 мм. При соединении проушины с рамой надо помнить, что ось отверстие d 18 мм должна быть перпендикулярна горизонтальной траверсе.

Все детали задней опоры изготовлены из стали 45 за исключением оси, которая сделана из стали марки Х12 или 35ХГС с последующей термообработкой.

Исходные детали руля - две зубчатые шайбы, три трубы толщиной пол-дюйма и планка 30х30 мм. Монтажный болт М12, показанный на рисунке, использован только для сварки одной из зубчатых шайб с планкой. Вторая шайба приварена к угловому кронштейну, выфрезерованому из куска стали 45. Сварка осуществлена с помощью того же монтажного болта.

Соединенные болтом М12х65, шайбы входят а зацепление друг с другом и позволяют регулировать высоту руля в зависимости от роста оператора.

 Рекомендуем интересные статьи раздела Строителю, домашнему мастеру:

▪ Струбцины для лыж

▪ Распиловочная установка

▪ Установка елки в патроне

Смотрите другие статьи раздела Строителю, домашнему мастеру.

Читайте и пишите полезные комментарии к этой статье.

<< Назад

Последние новости науки и техники, новинки электроники:

Соседи формируют вашу микрофлору 27.04.2026

Ученые уже давно рассматривают человека не как изолированный организм, а как сложную экосистему, тесно связанную с микромиром внутри и вокруг него. Особенно активно исследуется кишечная микрофлора, от которой зависят пищеварение, иммунитет и даже некоторые аспекты поведения. Новая работа Университета Восточной Англии добавляет к этому пониманию еще один важный слой: оказывается, состав микробиоты может изменяться под влиянием людей, с которыми мы живем рядом. Чтобы проверить, как социальные контакты влияют на передачу микробов, исследователи обратились к природной модели - сейшельской камышовке (Acrocephalus sechellensis), небольшой певчей птице, обитающей на острове Кузен на Сейшельских островах. Этот вид оказался особенно удобным для наблюдений, поскольку птицы живут изолированно и не покидают остров, что позволяет отслеживать их биологические и социальные связи на протяжении всей жизни. В рамках многолетнего исследования ученые собирали сотни образцов птичьего помета, анализир ...>>

Лазерная печать микросхем как альтернатива кремнию 27.04.2026

Индустрия электроники постепенно уходит от исключительно кремниевых и пластиковых решений в сторону более гибких, дешевых и экологичных материалов. Одним из наиболее необычных направлений стала так называемая бумажная электроника, где привычный лист бумаги превращается в основу для работающих электронных схем. Именно в этой области исследователи из Лаборатории биоэлектроники и микросхем Бингемтонского университета предложили принципиально новый подход к созданию микросхем. Ученые разработали технологию, при которой электронные схемы формируются прямо на пергаментной бумаге с помощью стандартного углекислотного лазера. Особенность используемого материала заключается в тонком силиконовом покрытии, придающем бумаге гидрофобные свойства и защищающем ее от влаги. Лазер точечно удаляет это покрытие, создавая рисунок будущей схемы и обнажая целлюлозные волокна, способные впитывать жидкость. Далее в образованные лазером микроскопические каналы вводятся водные чернила, которые формируют ф ...>>

Психологическое состояние и старение 26.04.2026

Наука все чаще рассматривает старение не только как биологический процесс, но и как явление, тесно связанное с психологическим состоянием человека. Эмоциональное благополучие, уровень стресса и ощущение социальной включенности могут напрямую влиять на то, как быстро изнашивается организм на клеточном уровне. Китайские исследователи провели масштабный анализ данных людей старше 45 лет и обнаружили важную закономерность: такие факторы, как одиночество и субъективное ощущение несчастья, связаны с ускорением биологического старения примерно на 1,65 года. Иными словами, внутреннее эмоциональное состояние может "добавлять" организму лишний возраст даже при одинаковом паспортном возрасте. Чтобы получить более точную оценку биологического старения, ученые использовали комплексный подход. В их анализ вошли 16 биомаркеров крови, семь биометрических параметров, а также данные, связанные с биологическим полом участников. Такой набор позволил сформировать более многослойную картину состояния ...>>

Случайная новость из Архива

Ультрабук-гибрид Toshiba Portege Z10T 27.04.2013

Компания Toshiba официально анонсировала ультрабук Portege Z10T с отсоединяемым дисплеем. Предварительную информацию об этом устройстве и его фотографии мы публиковали две недели назад. Тогда он "засветился" на Intel Developers Forum, проходившем в Китае.

Portege Z10T - первый гибридный ультрабук в линейке Toshiba, который можно использовать как планшет. Компания позиционирует его, прежде всего, как бизнес-решение и будет продавать с предустановленной операционной системой Windows 8 Professional.

Основные спецификации устройства включают мультисенсорный 11,6-дюймовый дисплей с разрешением 1920х1080 пикселей, процессоры Intel (вероятно, речь идет о чипах Intel Core i3-3229Y, i5-3339Y, i5-3439Y и i7-3689Y), SSD-накопитель вместо традиционного жесткого диска и модули беспроводной связи Wi-Fi 802.11 a/b/g/n, Bluetooth 4.0 и UMTS/LTE. В наиболее дорогих модификациях Toshiba Portege Z10T поддерживает технологию Intel Wireless Display (WiDi), предполагающую беспроводную трансляцию изображения и звука на телевизор.

Из проводных интерфейсов на планшете присутствуют разъемы USB 3.0 и micro-HDMI, а также слот micorSD. Кроме того, на отсоединяемой клавиатуре пользователь найдет порты USB 2.0, HDMI, VGA-выход и гнездо Gigabit Ethernet. Габариты новинки равны 299x220,5x16,9 мм, при этом производитель не уточняет, будет ли в клавиатуру встроен дополнительный аккумулятор.

Продажи Toshiba Portege Z10T начнутся во втором квартале 2013 года, однако его цена пока не определена.

Другие интересные новости:

▪ Видеотрансляция с 360-градусным обзором

▪ Искусственный интеллект научился клонировать высшие организмы

▪ Умное мыло заменит стиральную машинку

▪ Новый метод охлаждения для холодильников

▪ Новый медиапроцессор DaVinci для транскодирования HD-видео

Лента новостей науки и техники, новинок электроники

 

Интересные материалы Бесплатной технической библиотеки:

▪ раздел сайта Видеотехника. Подборка статей

▪ статья Зрительные иллюзии. Энциклопедия

▪ статья Где и когда разразилась эпидемия смеха, охватившая около 1000 детей? Подробный ответ

▪ статья Слесарь-электрик автозаправочных станций. Типовая инструкция по охране труда

▪ статья Детектор радиожучков с линейной шкалой из восьми светодиодов. Энциклопедия радиоэлектроники и электротехники

▪ статья ЧМ радиомикрофон на двух транзисторах, 65,8...74 МГц. Энциклопедия радиоэлектроники и электротехники

[an error occurred while processing this directive] Оставьте свой комментарий к этой статье:

Имя:


E-mail (не обязательно):


Комментарий:





Главная страница | Библиотека | Статьи | Карта сайта | Отзывы о сайте

www.diagram.com.ua

www.diagram.com.ua
2000-2026